A beautifully presented , newly converted, fully furnished studio apartment finished to an exceptional standard throughout.
Holding Fee £196. Available Immediately
Located close to a vast array of local amenities in Broomhill, on Ecclesall Road and in the City Centre, this property is finished to an excellent standard throughout, having been newly converted.
The property is fully insulated and benefits from stunning Aluminium patio doors.
Private entrance with its own courtyard. Outdoor storage shed.
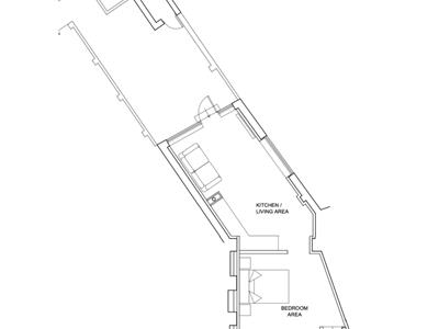
With electrical wall heaters and double glazing, the accommodation comprises:
Kitchen area with built in appliances: Electric oven having 4 ring induction hob. Fridge / Freezer. Dishwasher. Washing Machine.
Double bedroom area.
Modern bathroom with suite in white, double shower, WC and sink with vanity unit set below.
Furniture included:
2 seat sofa
Tv / coffee table
2 seat dining table / chairs
King size bed
Wardrobe / Drawers
Ofcom.org.uk advises that with the exception of O2, mobile network coverage is likely inside and outside of the property. O2 coverage may be less likely inside of the property but better outside of the property.
Ofcom.org.uk advises that via Virgin Media and Openreach the following broadband speeds are likely available at the property: standard, superfast and ultrafast.
Other than the pruning of trees (conservation area) by Number 11 College Street, there are no planning permission showing on the Sheffield Planning Portal which would affect a tenant living at this property.
Flood risk level: very low
There is no parking available with this property.
The Council are yet to allocate a Council Tax banding to this property.
Water bills are to be paid directly to the Landlord and are additional to the rent. The tenants will pay the landlord an amount of £10 per person, per month. This is due to there only being one water meter in this development comprising of 3 properties, which remains in the Landlord name.
Holding Fee £196. Available Immediately
The photography of this property is an artist impression and although very similar to the pediciated overall finish of the property, cannot be counted on as a truly authentic representation given the AI element. The property is in the final stages of its scheme of works, hence the need for this kind of imagery.
Although these particulars are thought to be materially correct their accuracy cannot be guaranteed and they do not form part of any contract.
Property data and search facilities supplied by www.vebra.com