21 Irongate
Derby
DE1 3GP
A RARE AND EXCITING OPPURTUNITY TO AQUIRE A PRIME SINGLE RESIDENTIAL BUILDING PLOT ON APPROX 0.5 ACRES.
An exceptional architect-designed contemporary residence extending to approximately 6,000 sq. ft. offering expansive, flexible living across multiple reception spaces – perfectly suited for multi-generational living. Set within a glorious countryside setting, this impressive home combines cutting-edge design, sustainable technology, and luxurious space – creating a rare opportunity to acquire a truly substantial and future-ready property. This outstanding home has been thoughtfully designed to deliver exceptional space, flexibility and efficiency, making it ideal for extended families or those seeking a versatile lifestyle property. With approximately 6,000 sq ft of accommodation, the property offers an abundance of living space, including five reception rooms that can be tailored for formal entertaining, home offices, leisure areas, or independent living zones. One of the many features is the inclusion of a private gymnasium, while the integration of solar panels, underfloor heating throughout and an air source heat pump ensures improved energy efficiency and reduced running costs – perfectly complementing the home’s modern design. The integration of a state-of –the art building system further enhances comfort and performance, while the contemporary architecture creates a striking yet highly practical living environment. Enjoying a peaceful countryside position, the property offers privacy, space, and scenic surroundings- ideal for those seeking a balance between rural tranquility and convenient modern living.
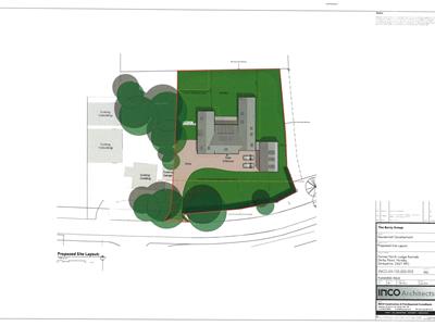
Planning permission has been granted, under revised planning application reference ERE/0924/0030 and dated November 2024, for the erection of a superior, two-storey residential dwelling house with link garage and rear balcony. The site is of a fairly level nature, with wide road frontage, having mains water on site, and mains electricity nearby. However, there is a need to install a new sewage treatment plant.
In our opinion, this is a rare and exciting opportunity to acquire a large, single residential building plot, with further potential offered for a design-and-build scheme (further details can be obtained form the agents), or potential to reapply for planning permission for further dwellings on site, subject to approvals.
The existing, proposed, stylish new dwelling has been designed with extensive glazing to the rear to enjoy the views over open countryside, and would comprise: -
To the ground floor double doors open to the reception hall, with cloaks/WC/shower room off, formal lounge, second informal living room, dining room, home office, luxury living dining Kitchen, laundry room, and gym. At ground floor level, the double garage is linked via a boot room, and has stairs providing access to a first floor room, which affords the potential for further accommodation, or dependent relative annex.
The ground floor will extend to circa. 2,917 sq. ft./271 sqm., the first floor will extend to circa. 2,281 sq. ft./212 sqm., and the garage will extend to circa. 473 sq. ft./44 sqm. or thereabouts.
To the first floor, an impressive landing, main bedroom suite with balcony, ensuite dressing room, and ensuite bathroom, bedroom two with ensuite dressing room and ensuite bathroom, bedroom three with ensuite bathroom, bedroom four with ensuite bathroom, bedroom five, and family bathroom.
Outside, the property enjoys a site area of approx. 0.5-acres.
The building plot adjoins, and enjoys views over open countryside in a sought-after rural setting, yet with the convenience of being within easy driving distance of Derby, and a comprehensive range of amenities.
When leaving Derby city centre by vehicle, proceed northeast towards Oakwood, passing Oakwood on the right-hand side before turning right into Lime Lane for Morley, and after crossing over Morley Road continue straight-on into Derby Road, and the building plot can be found on the left-hand side.
What 3 Words /// stump.turns/breed
Strictly by prior appointment with the Sole Agents, Gadsby Nichols. REF: R13536
5.890m x 3.570m / 3.570m x 1.570m (19'3" x 11'8" /
7.185m x 5.7m (23'6" x 18'8")
5.700m x 6.660m (18'8" x 21'10")
5.700m x 5.600m (18'8" x 18'4")
5.760m x 8.680m (18'10" x 28'5")
5.700m x 3.500m (18'8" x 11'5")
2.780m x 2.000m (9'1" x 6'6")
5.700m x 4.390m (18'8" x 14'4")
2.400m x 4.100m (7'10" x 13'5")
6.750m x 2.530m / 7.200m x 6.150m (22'1" x 8'3" /Links to the garage.
8.680m x 1.800m (28'5" x 5'10")
3.800m x 5.700m / 5.700m x 2.500m (12'5" x 18'8" /Having balcony and enjoying fine views over open countryside.
5.700m x 3.100m (18'8" x 10'2")
3.800m x 3.375m (12'5" x 11'0")Having French doors and Juliet balcony, enjoying views over the surrounding countryside.
3.500m x 5.600m (11'5" x 18'4")
2.600m x 2.450m (8'6" x 8'0")
5.700m x 3.440m (18'8" x 11'3")
2.600m x 2.450m (8'6" x 8'0")
3.800m x 3.000m (12'5" x 9'10")
5.700m x 3.500m (18'8" x 11'5")
5.700m x 2.500m (18'8" x 8'2")
The garage, boot room, and first floor annex provide the potential for dependent relative accommodation, subject to obtaining the usual planning and building regulation approvals.
10.000m x 6.200m (32'9" x 20'4")
The property will stand in grounds of approx. 05-acres.
We understand the property is held freehold, with vacant possession provided upon completion.
PLEASE NOTE, the agents have not tested any of the services, and no warranties are given or implied.
In accordance with AML Regulations, it is our duty to verify all Clients, at the start of any matter.
In order to carry out the identity checks, we will need to request the following: -
a)Proof of Identity – we will also need to verify this information by having sight of photographic ID. This can be in the form of a photographic driving license, passport, or national identity card;
b)Proof of Address – we will need to verify this information by having sight of a utility bill, bank statement, or similar. A mobile phone bill, or marketing mail will not be acceptable.
Although these particulars are thought to be materially correct their accuracy cannot be guaranteed and they do not form part of any contract.
Property data and search facilities supplied by www.vebra.com