**DEVELOPMENT OPPORTUNITY** A former hatchery with current planning permission for conversion to two detached bungalows and a three bedroom cottage also with permission to extend to create a four bedroom dwelling. Sitting on a generous 1.22 Acre site (subject to measured survey).
A unique opportunity to acquire a three bedroom end terraced cottage with planning permission for double storey extension to four bedrooms and a former hatchery also with planning permission to replace existing building with two detached three bedroom bungalows, each with their own parking areas. The cottage and agriculatural building currently stand on a site of around 1.22 acre (subject to measured survey).
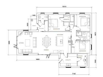
Planning permission was granted by South Norfolk Council on the 14th Feburary 2025 for a two storey side extension under planning reference 2024/3436. This would provide a comfortable four-bedroom family accommodation with two reception rooms, open plan kitchen/dining/living space, utility room, ground floor cloakroom, en-suite shower room and bathroom. The cottage currently has LPG heating with a combination boiler to radiators and UPVC double glazed windows. The generous plot extends to around 0.39 acre (subject to measured survey).
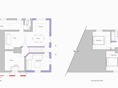
Planning permission has been granted on the 14th August 2025 to replace the former hatchery with two new separate dwellings. The new dwellings are two detached three bedroom bungalows comprising a modern open plan kitchen/living/dining room, three bedrooms; one with an ensuite, utility room, study, and rear hallway with cloakroom.
The Planning reference is 2023/0413. Both units will have independent access from New Road.
Bawburgh is a pretty village by the River Yare, located around 5 miles from Norwich city centre with easy access to the Norwich A47 southern bypass, Norfolk & Norwich University Hospital, Norwich Research park and the University of East Anglia. There is a public house in the village, opposite a green area by the river. Bawburgh golf club and the Norfolk Family Golf Centre are close by and a wide range of shops can be found at the Longwater Retail Park where there is also a gym, eat in and takeaway food outlets and a large Sainsbury's store.
There is a flying freehold with bedroom 3 of the property extending above the ground floor of the neighbouring property.
An area of land at the top of the bank on the east and north boundaries is subject to a claim for adverse possession. A plan showing this area which is to be conveyed within the Plot sale is available on request and is included on the plan in these particulars.
Tenure: Freehold
Council Tax Band: B
EPC Rating: E
The Cottage has mains water and electricity and The Hatchery has mains electricity and water supplied from a bore hole.
Foul drainage from 46, 45 and 44 New Road and The Hatchery goes to a shared septic tank which is located just beyond the west boundary of number 44, beside the track.
Although these particulars are thought to be materially correct their accuracy cannot be guaranteed and they do not form part of any contract.
Property data and search facilities supplied by www.vebra.com