82 Blackdyke Road
Kingstown Industrial Estate
Carlisle
Cumbria
CA3 0PJ
Vicinity Homes are delighted to offer to the market this immaculately presented, two double bedroom, semi detached house situated within a popular residential area to the West of Carlisle City Centre. The property is close to a range of local amenities, regular bus routes, popular Primary & Secondary Schools and has excellent access to the City Centre & the Western City Bypass providing transport links to the M6 Motorway. The accommodation briefly comprises of an entrance hallway, utility room, kitchen and dining lounge. To the first floor there are two double bedrooms and a bathroom. The property also benefits from double glazing, central heating, on site parking, garage, store and rear garden. Viewing is absolutely essential to fully appreciate the accommodation on offer. An ideal purchase for a first time buyer.
Proceed West along Castle Way. Turn left at the traffic lights onto Shaddongate and continue straight ahead onto Dalston Road. Turn right onto Dunmail Drive and left onto Langrigg Road. Turn left onto Newlaithes Avenue. The property is situated on the left hand side and can be identified by our "For Sale" sign.
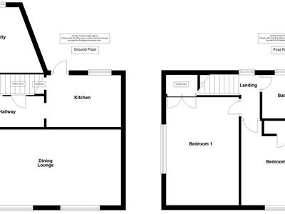
Approached by a door to side, incorporating a radiator, vinyl flooring, under stairs storage cupboard and stairs to the first floor.
2.957m x 2.159m (9'8" x 7'0")Incorporating a range of fitted wall and base units with complementary work surface over, integrated oven and integrated hob with cooker hood over. Sink unit with mixer tap, plumbing for a dishwasher and space for under counter fridge and freezer. Double glazed window to rear, door to rear, store/pantry area and vinyl flooring.
3.547m max x 1.684m min x 2.579m max (11'7" max xIncorporating a work surface, plumbing for a washing machine, space for a tumble drier, double glazed obscured window to side, double glazed window to rear and a radiator.
5.687m x 3.403m (18'7" x 11'1")Incorporating two double glazed windows to front and two radiators.
Incorporating a double glazed window to rear and loft access with a pull down ladder.
4.649m x 2.721m (15'3" x 8'11")A double bedroom incorporating a double glazed window to side, radiator and built in storage/wardrobe.
2.891m x 2.991m min (9'5" x 9'9" min)A double bedroom incorporating a double glazed window to front, radiator and built in storage cupboard.
1.934m x 1.683m (6'4" x 5'6")Incorporating a three piece suite comprising of a bath with shower over, pedestal wash hand basin and WC. Double glazed obscured window to rear, radiator and tiling to all walls.
The property is approached by a driveway and shillied area with double gated access to the rear garden. To the rear of the property there is a good sized garden with a patio seating area, lawn area, outside tap, spacious garage and store.
4.853m x 5.589m (15'11" x 18'4")Incorporating an up and over door, door to the garden, power and lighting.
Please note, the floor plan is not to scale and should be used for illustrative purposes only.
https://find-energy-certificate.service.gov.uk/energy-certificate/9615-1086-9102-0294-1502
The property is in Council Tax Band A.
The property is Freehold.
Strictly through arranged appointments by Vicinity Homes. To arrange a viewing, please contact: T: 01228 599011 or E: sales@vicinityhomes.co.uk.
We routinely refer potential purchasers to Mortgage Advisers - Fisher Financial Associates. It is your decision whether you choose to deal with Fisher Financial Associates. In making that decision, you should know that we will receive commission from the company worth approximately £50 depending on any business written.
Referral Fees - Vicinity Homes work with preferred conveyancers for a house sale or purchase. You are under no obligation to use their services. Should you choose to use them, Vicinity Homes Estate Agents will receive a referral fee of between £120.00 to £150.00 on completion of a sale or purchase.
These particulars, whilst believed to be accurate, are set out for guidance only and do not constitute any part of an offer or contract - intending purchasers should not rely on them as statements or representations of fact, but must satisfy themselves by inspection or otherwise as to their accuracy. All electrical appliances mentioned in these details have not been tested and therefore cannot be guaranteed to be in working order.
To register your buying information and receive updates on all our available properties, please contact Vicinity Homes on 01228 599011 or via email to sales@vicinityhomes.co.uk.
We would be pleased to provide you with a free, no obligation valuation for your home. Please contact Vicinity Homes on 01228 599011 or via email to sales@vicinityhomes.co.uk to arrange an appointment.
Although these particulars are thought to be materially correct their accuracy cannot be guaranteed and they do not form part of any contract.
Property data and search facilities supplied by www.vebra.com