2 West End
Swanland
North Feriby
North Humberside
HU14 3PE
***FINAL RELEASE ***NEW HOUSE TYPE AVAILABLE- THE ELMHIRST + (PLUS)
RESERVE BEFORE MAY AND RECEIVE-
FLOOR COVERINGS, WARDROBE PACKAGE AND TURFING TO REAR GARDENS.
FINAL RELEASE OF THESE FANTASTIC HOMES BUILT AND CONCEIVED BY WARD HOMES YORKSHIRE.
Ward Homes Yorkshire invites you to discover The Folly, Hornsea.
This is a rare opportunity to purchase one of 60 new energy efficient homes, each benefitting from the breath -taking natural beauty of the coast, while indulging in the comfort and convenience of modern living.
With its unparalleled location, exquisitely designed properties, and high-quality craftsmanship throughout, The Folly is poised to redefine the meaning of luxury coastal living.
CONTACT STANIFORD GRAYS TODAY TO DISCUSS HOW YOU CAN RESERVE YOUR DREAM HOME TODAY.
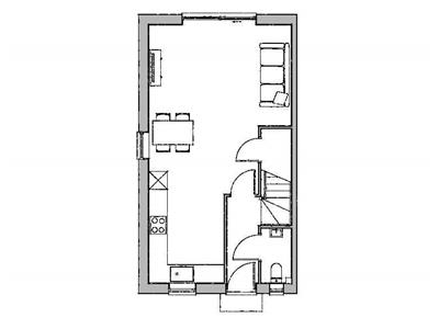
A superb new house type addition to the Ward Homes Yorkshire Family.
The Elmhirst + (Plus) is a more generous three-bedroom house with the benefit of an ensuite shower room to the principal bedroom.
Inside, you’ll find a well-appointed ground floor consisting of kitchen with ample dining
space, lounge with contemporary sliding doors, and a convenient ground floor WC
Upstairs you’ll find three generous bedrooms, ensuite shower room and a family bathroom - resulting in a very neat and compact property.
4.79 x 4.83 (15'8" x 15'10")
4.49 x 4.79 @ longest and widest point (14'8" x 15
1.03 x 1.86 (3'4" x 6'1")
3.35 x 3.69 (10'11" x 12'1")
2.15m x 1.63m (7'0" x 5'4")
3.40 x 2.66 (11'1" x 8'8")
2.36 x 2.38 (7'8" x 7'9")
1.78 x 2.66 (5'10" x 8'8")
Ward Homes Yorkshire prides itself on the high-quality specification included in its homes and The Folly properties will be no different. Our homes are finished to an exceptionaly high standard, with contemporary
living in mind. When buying a Ward Homes Yorkshire property, you can be assured that only the highest specification and products are used to finish the
home. The quality and craftsmanship of our builds speaks for itself.
FOR FULL SPECIFICATION DETAILS PLEASE DOWNLOAD THE OFFICIAL FOLLY BROCHURE IN THE LINK BELOW.
*Whilst specifications are correct at time of going to press, Ward Homes Yorkshire Limited reserves the right to alter designs, specifications, equipment and fittings where necessary. These specifications are only
a general guide. Images shown are for illustrative purposes only.
First Impressions-
Located off Atwick Road in Hornsea, within close proximity to the town centre and its local amenities, the development offers a range of 8 property types including 2, 3, and 4 bedroom homes – all with distinguishing features and individual benefits. Designed to resemble a horseshoe, the layout of the site allows for plenty of privacy and open space, and a large proportion of the houses benefit from
south, southeast, and southwest-facing gardens. The orientations are not only perfect to benefit the solar panels fitted on each property, but also for the whole family to enjoy outdoor living as much as possible.
Internally, all the properties cater for a modern lifestyle, and you will find that high-quality materials and beautiful craftsmanship are obvious features
throughout every room.
Why live in Hornsea? -
As one of the most sought-after coastal towns in the North of England, Hornsea has a stunning coastline with a long sandy
beach that stretches for miles. It is a great place for a walk, run, or to simply relax and enjoy the scenery. A quiet and peaceful town with a strong sense of community, Hornsea is an ideal place to escape the hustle and bustle of
city life and enjoy a slower pace of life. It is also a great place for outdoor enthusiasts, with opportunities for hiking, cycling, fishing, and water sports. The town has a number of parks and nature reserves, including Hornsea Mere, which is the largest freshwater lake in Yorkshire. Despite its petite size, Hornsea has a good range of local amenities, including shops, restaurants, cafes, and pubs. It is
also in close proximity to a number of highly-rated nurseries, primary schools, and secondary schools.
Location and access- Hornsea is located on the A1035 road, which connects it to nearby towns and cities such as Hull and Beverley. The A165 road also runs through Hornsea and provides access to Bridlington and Scarborough. It is also within easy reach of the North York Moors and the Yorkshire Dales. There are regular bus services to Hull, Beverley, and Bridlington from Hornsea operated by East Yorkshire Motor Services. The nearest airport to Hornsea is Humberside Airport, which is approximately 25 miles away. The airport has flights to destinations in the UK and Europe.
Strictly by appointment with sole selling agents, Stanifords.com on Tel: (01482) - 631133
E-mail: swansales@stanifords.com
We understand the Tenure of the property to be Freehold with Vacant Possession on Completion.
YOUR HOME IS AT RISK IF YOU DO NOT KEEP UP REPAYMENTS ON A MORTGAGE OR OTHER LOAN SECURED ON IT.
Preferred partner- Green & Green Mortgage & Protection — Your Local Mortgage Partner for Hull & East Yorkshire
At Green & Green, we specialise in supporting home-buyers in Hull and the surrounding areas with expert mortgage and personal insurance advice. With our independent status, we access hundreds of lenders to find the right deal for each person’s unique situation.
PROPERTY MISDESCRIPTIONS ACT 1991
The Agent has not tested any apparatus, equipment, fixture, fittings or services, and so does not verify they are in working order, fit for their purpose, or within ownership of the sellers, therefore the buyer must assume the information given is incorrect. Neither has the Agent checked the legal documentation to verify legal status of the property or the validity of any guarantee. A buyer must assume the information is incorrect, until it has been verified by their own solicitors."
The measurements supplied are for general guidance, and as such must be considered as incorrect. A buyer is advised to re-check the measurements themselves before committing themselves to any expense."
Nothing concerning the type of construction or the condition of the structure is to be implied from the photograph of the property.
The sales particulars may change in the course of time, and any interested party is advised to make final inspection of the property prior to exchange of contracts.
MISREPRESENTATION ACT 1967
These details are prepared as a general guide only, and should not be relied upon as a basis to enter into a legal contract, or to commit expenditure. An interested party should consult their own surveyor, solicitor or other professionals before committing themselves to any expenditure or other legal commitments.
If any interested party wishes to rely upon any information from the agent, then a request should be made and specific written confirmation can be provided. The Agent will not be responsible for any verbal statement made by any member of staff, as only a specific written confirmation should be relied upon. The Agent will not be responsible for any loss other than when specific written confirmation has been requested.
The anticipated build completion for this plot is Summer 2026
Although these particulars are thought to be materially correct their accuracy cannot be guaranteed and they do not form part of any contract.
Property data and search facilities supplied by www.vebra.com