9 Waterloo Street
Clifton
Bristol
Avon
BS8 4BT
Hollis Morgan – MAY LIVE ONLINE AUCTION – A Freehold RESI DEVELOPMENT OPPORTUNITY ( 3176 Sq Ft ) with PLANNING GRANTED to create 3 x FLATS / MAIS in the heart of Malmesbury.
ADDRESS | The Gig House, Oxford Street, Malmesbury, Wiltshire SN16 9AX
Lot Number TBC
*** PLEASE NOTE NEW AUCTION START TIME - NOW 12:00 ***
The Live Online Auction is on Wednesday 20th May 2026 @ 12:00 Noon
Registration Deadline is on Friday 15th May 2026 @ 16:00
The Auction will be streamed LIVE ONLINE via the Hollis Morgan website & you can choose to bid by telephone, proxy or via your computer.
Registration is a simple online process – please visit the Hollis Morgan auction website and click “REGISTER TO BID”
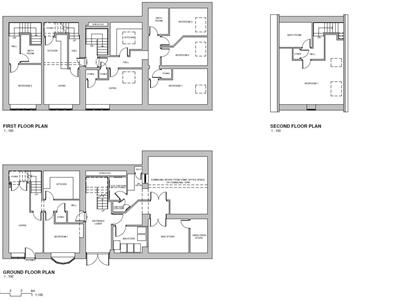
The Gig House is a charming property on the corner of Oxford Street and Hollaway Hill in the heart of Malmesbury. The accommodation ( 3176 Sq Ft ) is arranged over 3 floors and has most recently been used as an office ( Use Class E ) but is now offered with vacant possession
Tenure - Freehold
EPC - On Order | TBC
Listed - Not Listed
This property is elected for VAT - please refer to the online legal pack for further information | Potential bidders should rely on their own tax/VAT advice.
PLANNING GRANTED | RESI SCHEME
Planning has been granted ( PL/2023/07980 ) to convert the property into a scheme of 3 residential dwellings.
2 Bed Maisonette | 1 Bed Maisonette | 3 Bed Flat
Please refer to plans and schedule of proposed scheme
ALTERNATIVE RESIDENTIAL SCHEME
Interested parties will also consider alternative residential schemes such as one large dwelling suitable for a family home or HMO.
There is also merit in creating a 3 Bed flat and 3 Bed townhouse.
A large proportion of the proposed development of the ground floor is dedicated to communal areas which may be repurposed into accommodation.
All subject to gaining the necessary consents.
COMMERCIAL USE
The property would suit continued commercial use for a variety of occupiers.
REDUCED PRICE | AUCTION
The property was originally listed with respected local agents with an asking price of £350,000 and now has a reduced guide price for sale by auction.
FLAT 1 – 2 Bed Maisonette | 765 Sq Ft
Ground Floor - Entrance Hall | Kitchen | Living Space | Bedroom
First Floor – Bedroom | Bathroom
FLAT 2 - 1 Bed Maisonette | 765 Sq Ft
First Floor - Open Plan Kitchen / Living Space
Top Floor - Bedroom | Bathroom | Storage
FLAT 3 – 3 Bed | 915 Sq Ft
First Floor - Entrance Hall | Kitchen | Living Room | Bedroom 1 | Bedroom 2 | Bedroom 3 | Bathroom
COMMUNAL – Ground Floor
Entrance Lobby | Bin Store | Bike Store | Communal work from home office space or gym | Plant Room
Wiltshire Council
Application Reference - PL/2023/07980
Site Address - The Gig House, Oxford Street, Malmesbury, SN16 9AX
Proposal - Change of use from offices to 3 No. flats
Decision Notice Sent Date - 11/01/2024
Full details of the proposed scheme and drawings can be downloaded with the online legal pack.
Located in the heart of this historic town, yet within a short distance of country walks and the picturesque River Avon. The hilltop town of Malmesbury is officially recognised as England's oldest borough. Situated on the edge of the Cotswolds, surrounded by two branches of the River Avon, it boasts buildings of golden Cotswold stone and beautiful river walks. Famous for its ancient Abbey and elaborate 15th century Market Cross, the town may well have history round every corner but is also bustling with life, enjoying excellent independent shops, a Waitrose, charming cosy pubs, friendly cafes, regular farmers' markets and a busy local events schedule. The establishment of the Dyson design and development headquarters on the edge of the town means that Malmesbury is now a centre for technical innovation, allowing the town to truly describe itself as both ancient and modern. Malmesbury is five miles north of the M4 (Junction 17) so within easy commuting distance of Bristol, Bath and Swindon. London is approximately 1½ hours away by car or train.
Cara Forrest
Tanners Solicitors
EXTENDED COMPLETION
Completion is set for 8 weeks or earlier subject to mutual consent.
VIEWINGS
Please submit a viewing request online and we will contact you to organise an appointment.
We will send you an email and text to confirm the appointment time and the full property address.
Viewings are supervised by a member of the Hollis Morgan Auction team who will meet you at the property.
MATERIAL INFORMATION
Information including utilities, Electricity supply, Water supply, Sewerage, Heating, Broadband, Mobile signal / coverage, Parking, Building safety, Restrictions and rights, Rights and easements, Flood risk, Erosion risk, Coastal erosion risk, Planning permission for proposal for development, Property accessibility / adaptations, Coalfield or mining area all of which will be supplied within the legal pack that can be accessed for free via the Hollis Morgan website or via your EIG account.
ONLINE LEGAL PACKS
Digital Copies of the Online legal pack can be downloaded Free of Charge.
Please visit the Hollis Morgan Website and select the chosen lot from our Current Auction List.
Press the GREEN button to "Download Legal Packs" For the first visit you will be required to register simply with your email and a password.
Having set up your account you can download legal packs or if they are not yet available, they will automatically be sent to you when we receive them.
You will be automatically updated by email if any new information is added.
There will be a note added to the list to confirm AUCTION PACK NOW COMPLETE when no further information is due to be added.
*** STAY UPDATED *** By registering for the legal pack we can ensure you are kept updated on any changes to this Lot in the build up to the sale.
BUYER’S PREMIUM
Please be aware all purchasers are subject to a £1,500 + VAT (£1,800 inc VAT) buyer's premium which is ALWAYS payable upon exchange of contracts whether the sale is concluded before, during or after the auction date.
GUIDE PRICE
An indication of the seller's current minimum acceptable price at auction. The guide price or range of guide prices is given to assist consumers in deciding whether to pursue a purchase. It is usual, but not always the case, that a provisional reserve range is agreed between the seller and the auctioneer at the start of marketing. As the reserve is not fixed at this stage and can be adjusted by the seller at any time up to the day of the auction in the light of interest shown during the marketing period, a guide price is issued. This guide price can be shown in the form of a minimum and maximum price range within which an acceptable sale price (reserve) would fall, or as a single price figure within 10% of which the minimum acceptable price (reserve) would fall. A guide price is different to a reserve price (see separate definition). Both the guide price and the reserve price can be subject to change up to and including the day of the auction.
RESERVE PRICE
The seller's minimum acceptable price at auction and the figure below which the auctioneer cannot sell. The reserve price is not disclosed and remains confidential between the seller and the auctioneer. Both the guide price and the reserve price can be subject to change up to and including the day of the auction.
PRE AUCTION OFFERS
Some vendors are willing to consider offers prior to the auction.
Pre auction offers can ONLY be submitted by completing the online PRE AUCTION OFFER FORM
The form can be found on the Hollis Morgan website on the individual auction property listing.
Please note offers will not be considered until you have inspected the COMPLETE LEGAL PACK once it has been released.
There will be a note added to the list to confirm AUCTION PACK NOW COMPLETE when our client’s solicitor informs us no further information is due to be added.
In the event of an offer being accepted the property will only be removed from the online auction and viewings stopped once contracts have successfully EXCHANGED subject to the standard auction terms and payment of the buyer’s premium (£1,800 Inclusive of VAT) to Hollis Morgan.
Contracts can be exchanged via the solicitors or at the Hollis Morgan offices by appointment only.
REGISTRATION PROCESS
The registration process is extremely simple – visit the Hollis Morgan auction website and click on the “Register to Bid” button.
The “Register to Bid” button can be found on the auction home page or on the individual lot listings.
Please note this function is not available on Rightmove or Zoopla.
Stage 1 – Complete the Online Bidding Form
Stage 2 – Upload your certified ID
Stage 3 – Invitation to bid
Stage 4 – Pay your security deposit (£6,800)
You are now ready to bid – Good luck!
If your bid is successful, the balance of the deposit monies must be transferred to our client account within 24 hours of the auction sale.
If you are unsuccessful at the auction your holding deposit will be returned within 48 hours.
SURVEYS AND VALUATIONS
If you would like to arrange a survey or mortgage valuation of this Lot BEFORE the auction, please instruct your appointed surveyor to contact Hollis Morgan and we will arrange access for them to inspect the property. Please note that buyers CANNOT attend the surveys and the surveyors are responsible for collecting and returning keys to the Hollis Morgan offices in Clifton.
AUCTION FINANCE & BRIDGING LOANS
Some properties may require specialist auction finance- please contact Hollis Morgan for access to expert advice and whole of market rates from our independent brokers.
Hollis Morgan may receive introductory fees for this service from the broker.
AUCTION BUYER’S GUIDE VIDEO
We have short video guides for both buying and selling by Public Auction on the Hollis Morgan Website. If you have any further questions regarding the process, please don’t hesitate to contact Auction HQ.
2025 CHARITY OF THE YEAR
Hollis Morgan is supporting Uncle Pauls Chilli Charity empowering socially disadvantaged people with barriers to learning &/or disabilities based in Butcombe, North Somerset, our land overlooks the Mendip Hills and Blagdon lake. There are three main areas of focus at Uncle Paul’s Chilli Charity Education, Wellbeing and Social Prescribing – visit www.chillicharity.org.uk/ for more details or the Hollis Morgan Charity Page of our website.
AUCTION PROPERTY DETAILS DISCLAIMER
Hollis Morgan endeavour to make our sales details clear, accurate and reliable in line with the Consumer Protection from Unfair Trading Regulations 2008 but they should not be relied on as statements or representations of fact, and they do not constitute any part of an offer or contract. All Hollis Morgan references to planning, tenants, boundaries, potential development, tenure etc is to be superseded by the information contained in the legal pack. It should not be assumed that this property has all the necessary Planning, Building Regulation, or other consents. Any services, appliances and heating system(s) listed have not been checked or tested. Please note that in some instances the photographs may have been taken using a wide-angle lens. The seller does not make any representation or give any warranty in relation to the property, and we have no authority to do so on behalf of the seller.
Although these particulars are thought to be materially correct their accuracy cannot be guaranteed and they do not form part of any contract.
Property data and search facilities supplied by www.vebra.com