Fax: 01255 428943
Unit 2, Crusader Business Park
Stephenson Road West
Clacton On Sea
Essex
CO15 4TN
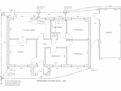
An opportunity to acquire a building plot with full planning permission for a three-bedroom detached bungalow with a separate Garage and Driveway. The plot is located just off Low Road in Dovercourt within a mile of the seafront and Town Centre. We anticipate the finished build to achieve in the region of £375,000.
Planning Ref: 20/00136/FUL (won at appeal). We are advised that the planning is extant as the works have been commenced.
For a copy of planning drawings and associated documents please contact the office.
ANTI-MONEY LAUNDERING REGULATIONS 2017 - In order to comply with regulations, prospective purchasers will be asked to produce photographic identification and proof of residence documentation once entering into negotiations for a property.
PLEASE NOTE - Although we have not tested any of the Gas/Electrical Fixtures & Fittings, we understand them to be in good working order, however it is up to any interested party to satisfy themselves of their condition before entering into any Legal Contract.
We understand section 106 and RAMS totalling to £3,957. 92 have been paid by the seller.
Although these particulars are thought to be materially correct their accuracy cannot be guaranteed and they do not form part of any contract.
Property data and search facilities supplied by www.vebra.com