The North Colchester Business Centre
Colchester
CO4 9AD
A rare opportunity to deliver a landmark waterfront residential scheme in a sought-after coastal location. With planning in place and a clearly defined GDV, the site offers immediate appeal to developers seeking a high-quality scheme with strong end value potential.
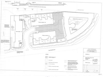
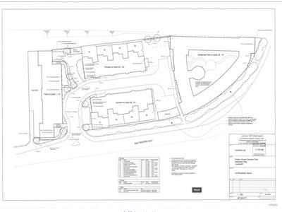
The site benefits from planning permission for a comprehensive residential-led scheme comprising a mix of apartments, houses and specialist accommodation, arranged to maximise the attractive waterfront setting overlooking Lake Lothing.
The development includes:
A prominent waterfront apartment block (Plots 1–21)
A mix of 1 & 2-bedroom apartments, including larger duplex units
8 x 4-bedroom detached houses
Additional sheltered accommodation units
In total, the scheme provides approximately 48,493 sq ft of residential accommodation, offering a well-balanced mix of unit types suited to a wide range of buyers.
The site occupies a strategic and highly attractive position:
Fronting Lake Lothing with open water views
Adjacent to a boardwalk and waterfront setting
Bounded by Saltwater Way and a railway line
Convenient access to Lowestoft town centre and transport links
This location offers strong appeal for both owner-occupiers and investors seeking modern coastal living.
The scheme benefits from implemented planning permission, with revisions enhancing the overall viability and design, including:
Conversion of former commercial units to residential flats
Inclusion of lift access to all apartments
Improved internal layouts and accommodation
Additional stairwell extensions and modernised design
The building has been carefully designed to maximise its waterfront position, with a distinctive curved layout and central courtyard arrangement.
Vehicular and pedestrian access from Saltwater Way
Basement parking provision (approx. 23 spaces) including disabled bays
Integrated bin stores and servicing areas
Lift access to all floors
Significant infrastructure and mitigation works have been incorporated, including:
Raised floor levels and boardwalk
Flood defence retaining walls in accordance with Environment Agency guidance
The scheme presents a compelling investment opportunity with strong projected returns:
Projected GDV: £15,100,000 – £17,955,000
Recommended GDV: approx. £16,505,000
Average unit value: approx. £263,500
Average values: approx. £325 – £375 per sq ft
Indicative pricing:
2-bed apartments: approx. £200,000 – £257,500
Larger duplex units: approx. £420,000
1-bed apartments: approx. £110,000 – £130,000
4-bed detached houses: approx. £925,000
Although these particulars are thought to be materially correct their accuracy cannot be guaranteed and they do not form part of any contract.
Property data and search facilities supplied by www.vebra.com