Email: development@cheffins.co.uk
1-2 Clifton House, Clifton Road
Cambridge
Cambridgeshire
CB1 7EA
Around 0.49 acres of development land with detailed planning consent for the conversion of 3no. former agricultural barns to form 3no. 3 bedroom residential properties.
The site extends to approx. 0.49 acre. and comprises three redundant agricultural buildings to be converted to three residential dwellings. The site is not in an area of flooding, not within the greenbelt and lies just outside of the development envelope of Chrishall.
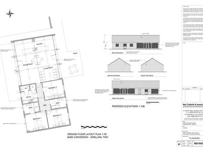
UTT/25/1539/FUL
Full planning for the conversion of and extension of redundant agricultural barns to create 3no. residential dwellings, with associated hard and soft landscaping, operational development and infrastructure. The proposed dwellings will retain the existing layout and approximate footprint of the existing agricultural buildings. New cart lodges will be provided to the rear of the properties. The new dwellings have been sensitively designed to respect the setting and character of the immediate area.
House types
Plot 1 – 106.1m2 - 1142.06ft2
Carport and walk way – 31.61m2 - 340.25ft2
Plot 2 – 147.84m2 – 1581.39ft2
Carport – 23.81m2 – 256.29ft2
Plot 3 – 148.94m2 – 1603.19ft2
Carport - 25.1m2 - 270.17ft2
Chrishall is a charming village located near the market town of Royston on the Essex, Hertfordshire and Cambridgeshire borders. Surrounded by beautiful open countryside, it offers a peaceful rural setting while still providing convenient access to nearby towns and transport links.
The village has a strong sense of community and benefits from a range of local amenities including a primary school, village hall, church, sports facilities and a traditional pub. Chrishall is also well placed for access to Cambridge, Royston and Saffron Walden, making it an attractive location for those seeking village life with good connectivity.
Please contact Cheffins for a guide pricing schedule for the proposed properties.
The site is sold subject to all wayleaves, easements, covenants, and rights of way whether or not disclosed in the Report on Title.
Although these particulars are thought to be materially correct their accuracy cannot be guaranteed and they do not form part of any contract.
Property data and search facilities supplied by www.vebra.com