42 Broadway
Leigh-On-Sea
Essex
SS9 1AJ
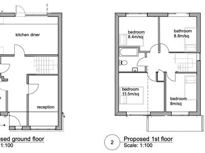
Scott & Stapleton are very excited to offer for sale this good size building plot with full planning permission for the construction of an approx. 1,200 sq ft 4 bedroom detached family house.
The plot is extremely generous plot is located in a quiet location surrounded by similar family homes and is convenient for all amenities. Southend East railway station is within a few minutes walk, the seafront, local parks & shopping facilities are also close to hand plus the property would be close to the popular Southend High School for Girls and the City centre.
The plot currently has a detached garage to the rear with parking in front and all services are nearby. This is a great opportunity to build a generous family home in a highly desirable location. Ideal for an end owner occupier or builder looking for profit.
The land is available immediately and further plans are available on request.
Although these particulars are thought to be materially correct their accuracy cannot be guaranteed and they do not form part of any contract.
Property data and search facilities supplied by www.vebra.com