95 Maidenhall
Highnam
Gloucester
Gloucestershire
GL2 8DJ
** Three Bedroom Terraced Home In Need Of Modernisation With No Onward Chain **
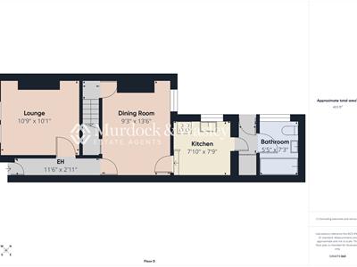
Murdock & Wasley Estate Agents are pleased to present this three bedroom mid-terrace home, ideally located in a popular and central area. The property offers spacious accommodation and includes a versatile layout, with a bathroom conveniently situated on the ground floor.
Externally, the property benefits from an enclosed rear garden, providing a private outdoor space to enjoy.
Offered to the market with no onward chain, this property presents an excellent opportunity for buyers looking to modernise and add value. It is well suited to first-time buyers, investors, or those seeking a project.
Accessed via upvc double glazed door, Doors lead off:
Power points, feature fireplace with surround, front aspect upvc double glazed window.
Power points, door to stairs leading to landing, rear aspect upvc double glazed window, Door leads off:
Range of base, wall and drawer mounted units, laminate worksurfaces, sink unit with mixer tap over. Space for cooker, appliances fridge, freezer and washing machine, side aspect upvc double glazed window.
Door leads to:
Door to airing cupboard, side aspect upvc double glazed door leading to garden.
Door leads off:
Suite comprising level level wc, pedestal wash hand basin with taps over, panelled bath with taps over, side aspect upvc double glazed window.
Doors lead off:
Power points, built in wardrobe, front aspect upvc double glazed windows.
Power points, ornate fireplace, door to storage, rear aspect upvc double glazed window.
Power points, rear aspect upvc double glazed window.
To the front of the property a small courtyard garden is enclosed by a low level wall.
To the rear of the property a garden laid to lawn is enclosed by wooden fencing.
Mains water, electricity & drainage.
Freehold.
Gloucester City Council
Tax Band: A
Details are yet to be approved by the vendor and may be subject to change. Please contact the office for more information.
Although these particulars are thought to be materially correct their accuracy cannot be guaranteed and they do not form part of any contract.
Property data and search facilities supplied by www.vebra.com