35 The Street
Latchingdon
Chelmsford
Essex
CM3 6JP
A fantastic opportunity to acquire a building plot with planning permission currently awaiting decision for a sizeable three-bedroom detached house with an integral garage and two three bedroom semi-detached properties. Once approved, the proposed development will provide three well-designed family homes set within a desirable location.
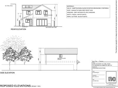
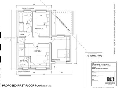
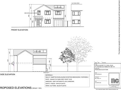
The proposed detached property includes a lounge/dining room, kitchen, utility room and cloakroom to the ground floor. To the first floor, the plans show three double bedrooms, a family bathroom with a four piece bathroom suite with bedroom one enjoying an en-suite.
The semi-detached properties commence with an entrance hall providing access to the cloakroom, lounge/dining room to the rear and the kitchen which leads to the utility room. To the first floor, the landing provides access to three well-proportioned bedrooms and a three piece family bathroom suite. Bedroom one in these two properties also benefit from an en-suite.
The planned properties will boast modern energy-efficient features including an air source heat pump and solar panels. Foul drainage will be connected, while water and electricity connections will be the responsibility of the purchaser.
This would be an ideal opportunity for developers or self-build buyers looking to create a high-quality home with the excellent potential this plot offers. Viewing is strictly by appointment only, and further details regarding the proposed plans and layout are available upon request.
The plot is located in the heart of Tillingham, which is a small village within the Dengie Peninsula which is bounded by the River Blackwater and the River Crouch, with the closest town being Burnham-On-Crouch which is approximately 8 miles from Tillingham. The village is clustered around the historic centre which has been designated as a conservation area. There are two public houses which dates back to the 15th century and the Church of St Nicholas which dates back to the 13th century. The village also benefits from a primary school, variety of shops, hairdressers, doctors, post office, a local recreational park, outdoor gym and sports clubs including cricket, football and bowls. The local village of Southminster has a train station which is located just 4.5 miles from Tillingham. the village also has idyllic footpaths throughout providing pleasant walks.
Strictly by appointment only through the selling agent Paul Mason Associates 01245 382555.
We wish to inform all prospective purchasers that we have prepared these particulars including text, photographs and measurements as a general guide. Room sizes should not be relied upon for carpets and furnishings. We have not carried out a survey or tested the services, appliances and specific fittings. These particulars do not form part of a contract and must not be relied upon as statement or representation of fact.
Although these particulars are thought to be materially correct their accuracy cannot be guaranteed and they do not form part of any contract.
Property data and search facilities supplied by www.vebra.com