2 Runwell Road
Wickford
Essex
SS11 7AB
** Development Opportunity ** Land with Planning Permission for a 3 Bedroom Chalet, Coxes Farm, Billericay **
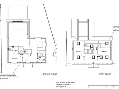
An excellent opportunity to acquire a parcel of land with granted planning permission for the construction of a well-designed three-bedroom chalet-style dwelling, situated within the highly desirable Coxes Farm area of Billericay.
This attractive plot offers the ideal setting for a bespoke family home in a peaceful semi-rural location while remaining conveniently close to local amenities, schools, and transport links. The approved plans provide for a stylish three-bedroom chalet residence, designed to maximise both living space and natural light, creating a comfortable and modern home environment.
The proposed accommodation includes spacious open-plan living areas, well-proportioned bedrooms, and a flexible layout suited to contemporary family living. The chalet design allows for generous ground floor accommodation complemented by additional bedrooms and bathroom facilities on the upper level.
Coxes Farm is widely regarded as one of the more sought-after locations within Billericay, offering a charming blend of countryside surroundings with easy access to the town centre. Billericay itself provides a range of shops, restaurants, and leisure facilities, along with a mainline railway station offering direct services into London, making it an ideal location for commuters.
This plot represents an exciting opportunity for developers, investors, or private buyers looking to build their own home in a desirable and established residential setting.
Further details regarding the planning consent and site information are available upon request.
Although these particulars are thought to be materially correct their accuracy cannot be guaranteed and they do not form part of any contract.
Property data and search facilities supplied by www.vebra.com