Design House, 5 Fazakerley Street, Liverpool, L3 - Guide Price £1,800,000
An exceptional opportunity to acquire a fully refurbished block of 9 luxury apartments in Liverpool city centre, producing £116,400 per annum (approx. 6.5% yield).
The development comprises 8 x two-bedroom and 1 x one-bedroom apartments, all finished to an exceptional, contemporary standard and fully let, providing immediate income. Situated within Liverpool’s prime business district, just off Old Hall Street, the property benefits from strong tenant demand and excellent connectivity.
Design House is situated in the heart of Liverpool’s business district, just off Old Hall Street which had been vacant since 2016 and was previously used as a Leisure Club. The building sits within the Castle Street Conservation Area and so the development works had to be sensitive to the area and in keeping with the council planning constraints. This building was originally part of the American embassy complex before it was knocked down in 1902 to make way for a branch of the Mersey Tunnel which runs directly under the site. The new building was built around 1912 when it appears again on the Gore’s Directory. In its new form it was a cotton warehouse, brewery, leather goods shop and a design and production studio for Littlewood’s catalogue.
**Sold as a business asset, offering potential stamp duty savings and a turnkey investment opportunity.**
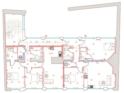
LOWER GROUND FLOOR
2 BEDROOM
2 BATHROOM
738 SQFT
CURRENTLY LET AT - £950
LOWER GROUND FLOOR
TWO BEDROOM
TWO BATHROOM
705 SQFT
CURRENTLY LET AT - £1,000
LOWER GROUND FLOOR
TWO BEDROOM
TWO BATHROOM
711 SQFT
CURRENTLY LET AT - £950
GROUND FLOOR
ONE BEDROOM
ONE BATHROOM
557 SQFT
CURRENTLY LET AT - £900
GROUND FLOOR
TWO BEDROOM
TWO BATHROOM
842 SQFT
CURRENTLY LET AT - £1,200
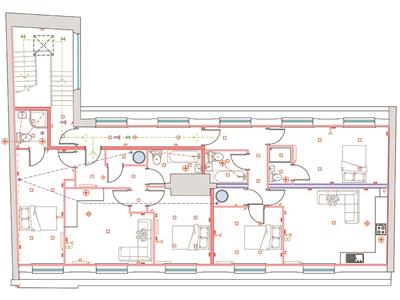
FIRST FLOOR
TWO BEDROOM
TWO BATHROOM
727 SQFT
CURRENTLY LET AT - £1,175
FIRST FLOOR
TWO BEDROOM
TWO BATHROOM
763 SQFT
CURRENTLY LET AT -£1,150
TWO BEDROOM
TWO BATHROOM
LOWER GROUND FLOOR
738 SQFT
CURRENTLY LET AT -
PENTHOUSE
TWO BEDROOM
TWO BATHROOM
636 SQFT
CURRENTLY LET AT - £1,200
PENTHOUSE
TWO BEDROOM
TWO BATHROOM
687 SQFT
CURRENTLY LET AT - £1,125
Refurbishment work began in November 2019. Development of this site included removing the Welsh slate tiled roof with the tiles being retained and graded to be installed back on the newly constructed Mansard roof.
All let and maintained through Hewitt Adams. All fully let.
Although these particulars are thought to be materially correct their accuracy cannot be guaranteed and they do not form part of any contract.
Property data and search facilities supplied by www.vebra.com