82 Blackdyke Road
Kingstown Industrial Estate
Carlisle
Cumbria
CA3 0PJ
Vicinity Homes are delighted to offer to the market this spacious, six bedroom, bay fronted mid terrace house situated within a sought after area of Carlisle. The property is close to a range of local amenities, regular bus routes, popular Primary & Secondary Schools and has excellent access to the City Centre and the M6 Motorway. The accommodation is split over three floors and briefly comprises of an entrance vestibule, hallway, lounge with bay window, sitting room, cloakroom/WC, dining kitchen and rear hallway. To the first floor there is a split landing with four bedrooms and a bathroom. To the second floor there are two further bedrooms and a master en-suite bathroom. The property also benefits from double glazing, central heating, front forecourt and a good sized rear enclosed yard with a utility room, covered seating area and a garage with bi-fold gates. Viewing of this substantial family home is absolutely essential to fully appreciate the accommodation on offer. An ideal purchase for a family.
Proceed East along Warwick Road. The property is situated on the right hand side and can be identified by our "For Sale" sign.
Approached by a door to front, incorporating tiled floor and coving to the ceiling.
Incorporating a radiator, double glazed window to side, exposed floor boards, coving to the ceiling and stairs to the first floor.
5.578m max x 4.213m max (18'3" max x 13'9" max)Incorporating a double glazed bay window to front, radiator, coving to the ceiling, ceiling rose and a feature open fireplace with surround, inset and hearth.
4.785m x 3.666m (15'8" x 12'0")Incorporating a door to rear, radiator, coving to the ceiling, ceiling rose and a feature fireplace.
5.266m x 3.443m (17'3" x 11'3")Incorporating a range of fitted wall and base units with complementary work surface over, oven point, integrated dishwasher, 1.5 sink unit with mixer tap and splash backs. Three double glazed windows to side, radiator, exposed floor boards and built in storage cupboards.
2.444m x 2.260m (8'0" x 7'4")Incorporating a double glazed window to side, door to side, tiled floor, radiator and space for a fridge/freezer.
1.811m x 0.949m (5'11" x 3'1")Incorporating a wash hand basin set to vanity unit, WC and extractor fan.
Incorporating a double glazed window to side, radiator and stairs to the second floor.
4.985m x 3.636m (16'4" x 11'11")A double bedroom incorporating two double glazed windows to front, radiator, feature fireplace and coving to the ceiling.
4.423m x 3.660m (14'6" x 12'0")A double bedroom incorporating a double glazed window to rear, radiator, pedestal wash hand basin, tiled splash areas, coving to the ceiling and a feature fireplace.
3.449m x 2.735m (11'3" x 8'11")A double bedroom incorporating a double glazed window to rear, radiator, fitted wardrobe/storage and a feature fireplace.
3.264m x 2.035m (10'8" x 6'8")Incorporating a double glazed window to front, radiator, exposed floor boards and coving to the ceiling.
Bedroom Four has views to the front of the house, across to the Church.
2.816m max x 2.452m max (9'2" max x 8'0" max)Incorporating a three piece suite comprising of a bath with waterfall shower & attachment, pedestal wash hand basin and WC. Two double glazed windows to side, heated towel rail, tiled splash areas and inset ceiling lights.
Incorporating a built in storage cupboard and double glazed skylight to rear.
6.375m x 2.661m (20'10" x 8'8")A double bedroom incorporating two double glazed windows to front, radiator, exposed floor boards and a feature fireplace.
3.097m x 2.898m (10'1" x 9'6")Incorporating a four piece suite comprising of a roll top bath with mixer tap & attachment, shower cubicle, pedestal wash hand basin and WC. Double glazed skylight to rear, radiator and tiled splash areas. There is some restricted head height due to the sloped ceiling.
2.655m max x 4.215m max x 3.109m min (8'8" max x 1Incorporating a double glazed window to front, radiator and loft access.
The property is approached by a front forecourt with shillied area and flower & shrub bed. To the rear of the property there is a good sized yard with block paved seating areas, outside tap, covered seating area and access into the garage.
2.507m x 2.278m (8'2" x 7'5")Incorporating a double glazed window to side, power, lighting, tiled floor, plumbing for a washing machine and a radiator.
2.409m x 1.962m (7'10" x 6'5")Incorporating tiled floor, lighting and french doors to rear.
6.203m x 3.031m (20'4" x 9'11")Incorporating two double glazed windows, door into the garden, power, lighting and double bi-fold gates.
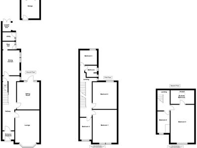
Please note, the floor plan is not to scale and should be used for illustrative purposes only.
https://find-energy-certificate.service.gov.uk/energy-certificate/7436-8327-0600-0048-0296
The property is Freehold.
The property is in Council Tax Band D.
Strictly through arranged appointments by Vicinity Homes. To arrange a viewing, please contact: T: 01228 599011 or E: sales@vicinityhomes.co.uk.
We routinely refer potential purchasers to Mortgage Advisers - Fisher Financial Associates. It is your decision whether you choose to deal with Fisher Financial Associates. In making that decision, you should know that we will receive commission from the company worth approximately £50 depending on any business written.
Referral Fees - Vicinity Homes work with preferred conveyancers for a house sale or purchase. You are under no obligation to use their services. Should you choose to use them, Vicinity Homes Estate Agents will receive a referral fee of between £120.00 to £150.00 on completion of a sale or purchase.
These particulars, whilst believed to be accurate, are set out for guidance only and do not constitute any part of an offer or contract - intending purchasers should not rely on them as statements or representations of fact, but must satisfy themselves by inspection or otherwise as to their accuracy. All electrical appliances mentioned in these details have not been tested and therefore cannot be guaranteed to be in working order.
To register your buying information and receive updates on all our available properties, please contact Vicinity Homes on 01228 599011 or via email to sales@vicinityhomes.co.uk.
We would be pleased to provide you with a free, no obligation valuation for your home. Please contact Vicinity Homes on 01228 599011 or via email to sales@vicinityhomes.co.uk to arrange an appointment.
Although these particulars are thought to be materially correct their accuracy cannot be guaranteed and they do not form part of any contract.
Property data and search facilities supplied by www.vebra.com