10-12 Eggbuckland Road
Henders Corner
Mannamead
Plymouth
Devon
PL3 5HE
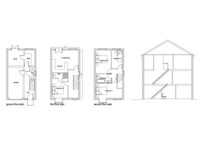
A triangular shaped part of land approximately 1.318 hectres (3.25 acres) in size. Located between Desborough Road and Knighton Road in St Judes. The outline approval comprising 50 residential dwellings, 3 bedroom dwellings & 4 bedroom dwellings. At a density at approximately 38 dwellings per hectre. A total of 96 car parking spaces in the form of 57 on plot spaces and 39 integral garages.
A triangular shaped part of land approximately 1.318 hectres (3.25 acres) in size. Located between Desborough Road and Knighton Road in St Judes.
A former railway sidings which has been disused for many years. The site is generally level and unusual setting being at a lower level than all of the land and development that surrounds it. Surrounding developments to the North East and South is mainly residential with bulky goods retail development immediately to the West, leading into the City Centre along Exeter Street. The City Centre is approximately a 700m walk from the site.
The surrounding residential development is period in character and mainly in the form of Edwardian and Victorian terraces, many of which have been subdivided into smaller units.
The outline approval comprising 50 residential dwellings, 3 bedroom dwellings & 4 bedroom dwellings. At a density at approximately 38 dwellings per hectre. A total of 96 car parking spaces in the form of 57 on plot spaces and 39 integral garages.
Although these particulars are thought to be materially correct their accuracy cannot be guaranteed and they do not form part of any contract.
Property data and search facilities supplied by www.vebra.com