Vision Offices
Saxon House
27 Duke Street
Chelmsford
Essex
CM1 1HT
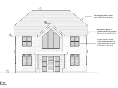
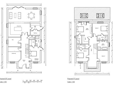
Plot 1 is Nestled in the desirable area of School Road, Kelvedon Hatch, Brentwood, this exceptional plot of land presents a rare opportunity for those looking to invest in a prime location. The land comes with planning permission already granted 25/00420/FUL 'Proposed extension to existing bungalow to create additional floor'
Kelvedon Hatch is known for its charming village atmosphere, offering a peaceful retreat while still being conveniently located near essential amenities. The area boasts excellent transport links, providing easy access to nearby towns and cities, making it perfect for families and commuters alike.
This plot of land is not only a sound investment but also a chance to contribute to the community by creating modern family homes in a sought-after location. With the planning permission in place, the groundwork is laid for a project that can cater to the needs of future residents, ensuring a blend of comfort and contemporary living.
Do not miss this unique opportunity to secure a piece of land in a thriving area, where you can bring your vision to life and create homes that will be cherished for years to come.
Although these particulars are thought to be materially correct their accuracy cannot be guaranteed and they do not form part of any contract.
Property data and search facilities supplied by www.vebra.com