3 Broadway
Sheerness
Kent
ME12 1AB
Both Plots £250,000 Full Planning Permission Granted
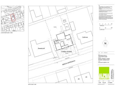
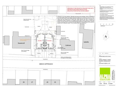
In the charming area of Beach Approach, Warden, Sheerness, this property presents a unique opportunity for those looking to invest in a new build. Currently, the site features a non-traditional two-bedroom bungalow, which is set to be demolished, making way for exciting new developments.
The property boasts full planning permission granted under reference 25/503482/FULL for the construction of two semi-detached houses, each with three bedrooms. This is an excellent chance for buyers or investors to create modern homes tailored to contemporary living standards.
The existing bungalow includes two reception rooms, providing ample space for relaxation and entertainment. With one bathroom, the layout is functional, yet the real value lies in the potential for redevelopment. The land is available for £250,000 for both plots, offering a promising investment in a desirable location.
Warden is known for its picturesque surroundings and proximity to the coast, making it an attractive area for families and individuals alike. This property not only offers a chance to build new homes but also to become part of a vibrant community.
Whether you are looking to invest or create your dream home, this property on Beach Approach is a remarkable opportunity not to be missed.
4.6 x 1.3 (15'1" x 4'3")
5.6 x 4.6 x 3.2 (18'4" x 15'1" x 10'5")
4.8 x 4.1 (15'8" x 13'5")
4.6 x 3.4 (15'1" x 11'1")
3.3 x 2.5 (10'9" x 8'2")
3.3 x 2.5 (10'9" x 8'2")
3.4 x 1.5 (11'1" x 4'11")
Although these particulars are thought to be materially correct their accuracy cannot be guaranteed and they do not form part of any contract.
Property data and search facilities supplied by www.vebra.com