3 Beaumont Street
Hexham
Northumberland
NE46 3LZ
Extending to over 7,000 sq ft of beautifully conceived accommodation, this exceptional property presents a rare opportunity to create a magnificent contemporary home that combines striking architectural design with luxurious living and advanced environmental efficiency. Set within generous private grounds in one of the region’s most desirable village locations, it offers the chance to deliver a landmark family home designed entirely around modern lifestyle needs. Every aspect of the layout has been carefully considered to combine impressive architectural presence with exceptional everyday practicality.
The property occupies a private plot of approximately one acre and benefits from full planning permission for an outstanding architect-designed residence. Positioned on one of the most prestigious and sought-after roads within the highly regarded village of Stocksfield, opportunities to secure a site of this scale, privacy and potential are rarely available within such a prime residential setting.
Northumberland County Council --- Planning --- 24/03530/FUL
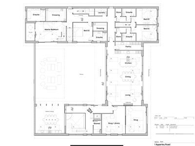
The following description relates to the approved planning permission for the construction of an exceptional contemporary residence, thoughtfully designed to provide spacious, high-quality accommodation arranged over three floors. The Design is as follows -
Approached via a private road, the property immediately conveys a sense of exclusivity and seclusion. Sensor-activated lighting illuminates the approach to secure electronic entrance gates, which can be operated remotely or via keypad entry with integrated intercom access.
Beyond the gates, an expansive tarmac driveway provides generous parking for multiple vehicles, in addition to the integral garage. The plot also benefits from a 1/7th ownership share of the paddock located immediately in front of the property, further enhancing the sense of openness and rural outlook.
The ground floor opens with a formal entrance hall that sets the tone for the impressive accommodation beyond. To the left, a state-of-the-art home cinema offers the ultimate entertainment experience and a superb space for relaxation. This is further enhanced by a dedicated games and entertainment room, an ideal setting for hosting guests and celebrating special occasions. Also located on this level are a plant room and WC, while internal access from the garage leads to a practical dog boot room, perfect after countryside walks. A discreetly positioned passenger lift serves the ground and first floors, providing effortless accessibility throughout the principal living levels of the home.
The first floor reveals a spectacular open-plan kitchen, dining and garden room. Designed as the true heart of the home, this remarkable space is flooded with natural light and enjoys a seamless connection with the surrounding gardens, creating an ideal environment for both everyday family living and entertaining.
The layout flows effortlessly into a comfortable snug and a further snug/library area, providing more intimate spaces for relaxation. A well-appointed shower room also serves this level.
This floor also accommodates four generously proportioned double bedroom suites. Each has been thoughtfully designed to include its own private dressing room and luxurious en-suite bath or shower room, ensuring exceptional comfort, privacy and convenience for both family members and visiting guests.
One of the bedrooms also benefits from a private balcony overlooking the surrounding grounds, adding an additional sense of space and exclusivity. A beautifully appointed family shower room also serves this level.
The second floor provides further flexibility, featuring a fifth double bedroom suite complete with its own en-suite bathroom, alongside a large study or home office. This level offers excellent versatility for modern working arrangements, guest accommodation, or a peaceful private retreat within the home.
The property will operate as a fully integrated smart home, incorporating solar panels, air-source heat pumps and underfloor heating throughout to maximise energy efficiency and comfort. Electric vehicle charging points are included, while the home’s technology systems can be conveniently controlled remotely to suit modern lifestyles. Security is further enhanced through a comprehensive smart CCTV system with multiple cameras and remote monitoring capability.
Although these particulars are thought to be materially correct their accuracy cannot be guaranteed and they do not form part of any contract.
Property data and search facilities supplied by www.vebra.com