Duffield House, Town Street
Duffield
Derbyshire
DE56 4GD
ECCLESBOURNE SCHOOL CATCHMENT AREA - This immaculate three bedroom semi-detached home benefits from a south-facing garden with delightful home office or studio.
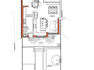
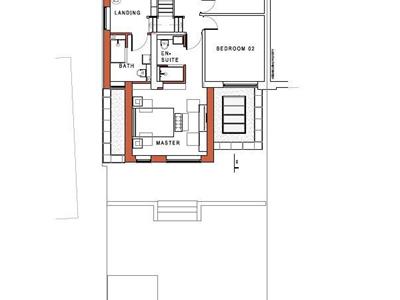
Additionally, planning permission has been granted to extend the house, offering the new owners the exciting opportunity to further enhance their living space according to their personal needs and preferences.
PLANNING APPLICATION NUMBER - AVA/2025/0218 Two Storey Side and Rear Extension GRANTED May 2025 - Amber Valley
The village of Duffield provides an excellent range of amenities including a varied selection of shops, post office, library, historic St Alkmund's Church and a selection of good restaurants, medical facilities and schools including The Meadows, William Gilbert Primary Schools and the noted Ecclesbourne Secondary School. There is a regular train service into Derby City centre which lies some 5 miles to the south of the village. Local recreational facilities within the village include squash, tennis, cricket, football, and the noted Chevin Golf course. A further point to note is that the Derwent Valley, in which the village of Duffield nestles, is one of the few world heritage sites and is surrounded by beautiful countryside.
With entrance door opening into entrance hall.
4.13 x 1.94 (13'6" x 6'4")With radiator, double glazed window and attractive staircase with glass balustrade leading to first floor with understairs storage cupboard.
4.08 x 3.47 (13'4" x 11'4")With chimney breast incorporating log burning stone with raised slate hearth and raised oak mantel, radiator, double glazed window to front and internal glazed door with chrome fittings.
3.40 x 2.95 (11'1" x 9'8")With radiator, double glazed sliding patio doors opening onto composite decking and south facing garden.
3.38 x 2.49 (11'1" x 8'2")With one and a half sink unit with mixer tap, wall and base fitted units with matching worktops, built-in four ring gas hob, built-in electric fan assisted oven, space for fridge/freezer, plumbing for automatic washing machine, spotlights to ceiling, heater chrome towel rail/radiator, tile flooring, cupboard housing the Vaillant boiler, double glazed window to rear and double glazed or giving access to south facing garden.
2.09 x 1.38 (6'10" x 4'6")With continuation of the attractive glass balustrade, access to roof space and double glazed window to side.
4.10 x 3.22 (13'5" x 10'6")With fitted wardrobes with sliding doors, radiator, double glazed to front and internal panelled door with chrome fittings.
3.41 x 3.08 (11'2" x 10'1")With radiator, double glazed window to rear and internal panelled door with chrome fittings.
2.93 x 2.21 (9'7" x 7'3")With fitted double wardrobe, radiator, double glazed window to side and internal panelled door with chrome fittings.
2.53 x 2.35 (8'3" x 7'8")With bath with chrome fittings, fitted wash basin with chrome fittings fitted base cupboard underneath, low level WC, separate shower cubicle with chrome fittings including shower, tile splashbacks, tiled effect flooring, heated towel rail/radiator, spotlights to ceiling, double glazed window to rear with fitted blind, wall mounted mirror medicine cabinet, extractor fan and internal panelled door with chrome fittings.
The property is set back from the pavement edge behind a low maintenance, fore-garden with slate chippings.
The property benefits from a south facing (non-overlooked), enclosed rear garden laid to lawn with flower beds, raised composite decked area and feature home office/studio.
3.57 x 2.51 (11'8" x 8'2")With power, lighting, insulation, heating, double glazed window and double glazed sliding door.
The property benefits from a double width, block paved driveway for two/three cars.
5.21 x 2.60 (17'1" x 8'6")With power and lighting.
PLANNING APPLICATION NUMBER - AVA/2025/0218 Two Storey Side and Rear Extension GRANTED May 2025 - Amber Valley
Amber Valley
Although these particulars are thought to be materially correct their accuracy cannot be guaranteed and they do not form part of any contract.
Property data and search facilities supplied by www.vebra.com