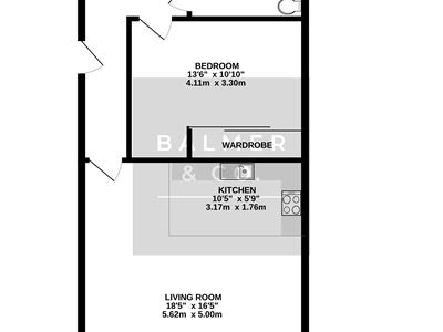
BALMER & CO in LEIGH are delighted to offer FOR SALE this spacious one bedroom apartment with allocated parking space, located on the third floor of the converted Mather House Mill in Leigh. Immaculately presented throughout with access to a range of on site amenities including a cinema room, private dining room as well as a gym, it would suit a wide range of buyers. Comprising in brief; secure intercom system, lift access to all floors, entrance hallway, stunning open plan living/dining room/kitchen with integrated appliances, master double bedroom with fitted wardrobes and a three piece fitted bathroom suite. An allocated parking space completes the accommodation on offer. Externally, the property is located alongside the Bridgewater canal with transport links to Manchester city centre within walking distance. Early viewings highly recommended, all enquiries welcome.
Although these particulars are thought to be materially correct their accuracy cannot be guaranteed and they do not form part of any contract.
Property data and search facilities supplied by www.vebra.com