Fax: 01432 352 954
Offa House
Hereford
HR1 2PQ
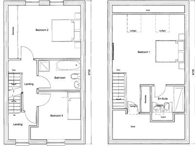
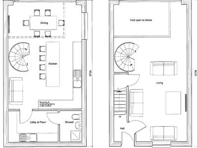
A freehold building plot situated on the outskirts of North Hereford, benefitting from full planning consent and a Certificate of Lawfulness for the construction of a detached residential dwelling. The approved plans provide for generously proportioned accommodation arranged over four floors, including a spacious kitchen/dining room, living room, utility room, shower room, three double bedrooms, an en suite shower room, and a family bathroom. Mains water, gas, and electricity are available nearby. The property is offered for sale by informal tender, with a closing date of 30th March. An excellent opportunity for developers or for purchasers seeking to build their own bespoke home.
The property is situated to the North of Hereford in the well-established residential area of Holmer. The locality benefits from a range of nearby amenities, while Hereford itself offers an extensive selection of shopping, leisure and recreational facilities, together with a variety of educational establishments and excellent transport links, including both bus and railway stations.
Planning permission was granted on the 28th February 2011 for a period of three years under Application No. S103349/F. A Certificate of Lawfulness was subsequently granted on the 15th October 2025 under Application No. P251075/V. Full planning documents and approved plans are available to view on the Herefordshire Council website.
We understand that mains water, gas and electricity are available nearby.
Freehold with vacant possession upon completion.
Herefordshire County Council, Plough Ln, Hereford HR4 0LE
Welsh Water, Fortran Rd, St. Mellons, Cardiff CF3 0LT
National Grid ED (West Midlands), Bristol, BS2 0TB
The building plot is offered for sale by Informal Tender. Prospective purchasers are advised to make their own enquiries with Herefordshire County Council and any other relevant authorities prior to submitting an offer. It is anticipated that no further negotiations will take place following the informal tender closing date. Informal Tender documents must be signed by the proposed purchaser(s) and clearly state the offer price, and should be submitted to Alex Evans, Sunderlands, Offa House, St Peters Square, Hereford, HR1 2PQ, to be received no later than 12 noon on Monday 30th March 2026. Envelopes should be clearly marked “Informal Tender for the Building Plot Adjacent to The Willows” and securely sealed. The Vendor reserves the right not to accept the highest, or any, offer and also reserves the right to accept an offer prior to the informal tender closing date.
The purchaser will be required to provide sufficient identification to verify their identity in compliance with anti-money laundering regulations. Please note that a fee of £18 (inclusive of VAT) per person will be charged to conduct the necessary anti-money laundering checks. This fee is payable at the time of verification and is non-refundable.
Proceed out of Hereford along Holmer Road (A49). At the roundabout, take the third exit onto Roman Road and continue ahead, passing the left-hand turning for Munstone. The plot will be found shortly afterwards on the left-hand side, clearly identified by the agent’s For Sale board.
Any plans used in the preparation of these details may have been reduced in scale and any interested parties should check the Title Plan before proceeding to purchase.
Please note that the adjacent property is available for purchase from another agent under separate negotiation.
Although these particulars are thought to be materially correct their accuracy cannot be guaranteed and they do not form part of any contract.
Property data and search facilities supplied by www.vebra.com