62 Elliott Street
Tyldesley
Greater Manchester
M29 8DS
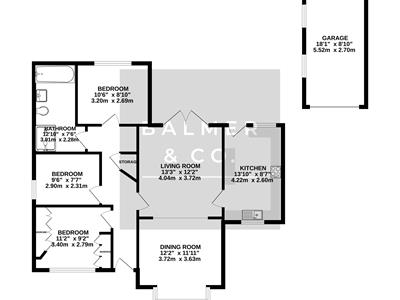
BALMER & CO in ATHERTON are delighted to offer FOR SALE this exceptional three bedroom detached true bungalow, located on the ever popular North Road in Atherton. Finished to an impeccable standard throughout it is a true credit to its current owners who have lovingly maintained and upgraded the property during their time here. It is also conveniently placed for access to both Atherton and Westhoughton town centres, offering a fantastic range of amenities, including shops, schools, bars & restaurants as well as transport links. Comprising in brief; entrance hallway, open plan living/dining room with gas fireplace and patio doors out the rear garden, a modern fitted kitchen with integrated appliances, three bedrooms and fitted wardrobes. A four piece bathroom suite completes the internal accommodation. Externally, there is a large garden and driveway to the front of the property, providing off road parking for multiple vehicles, leading to a detached garage with electric door. To the rear is a large rear garden offering a fantastic level of privacy as it overlooks open fields. Early viewings highly recommended, all enquiries welcome.
Although these particulars are thought to be materially correct their accuracy cannot be guaranteed and they do not form part of any contract.
Property data and search facilities supplied by www.vebra.com