3 The Boardwalk
Mercia Marina
Findern Lane
Willington
DE65 6DW
This superbly appointed four-bedroom detached residence presents an exceptional opportunity to acquire one of only two distinguished homes, occupying a prime position on The Green in the very heart of Findern.
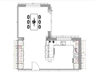
Currently under construction by respected local developers Sunrise Homes, the property is thoughtfully arranged over three floors and designed to offer elegant, contemporary living of the highest standard. The accommodation includes a welcoming entrance hall, formal living room with an attractive feature chimney breast, cloakroom, utility room, and a stunning open-plan kitchen diner with bifold doors opening onto the landscaped rear garden — perfectly suited to modern family life and entertaining.
The first floor hosts three generous double bedrooms, including a luxurious principal suite with dressing area and ensuite, alongside a stylish family bathroom. A further impressive double bedroom with ensuite occupies the second floor, providing versatile additional accommodation.
High-end finishes are evident throughout, including engineered oak flooring, underfloor heating to the ground floor, quartz worktops, Symphony cabinetry, quality Rose door furniture, brushed chrome fittings, LED lighting, Cat 6 cabling, and EV charging provision. The rear garden will be turfed with Indian sandstone patio areas included.
Combining architectural presence, refined interiors and a highly desirable village setting, this is a rare opportunity to secure a landmark home in Findern, with completion anticipated in Summer 2026.
Findern is a highly sought-after village thanks to its excellent location just off the A38 and close to the A50, making it convenient for commuting to nearby regional centres and major employers. At the heart of the village is an attractive open green, surrounded by amenities including a post office, village hall, nursery, primary school, and hairdresser. The village also offers numerous scenic walks.
Nearby, the popular tourist destination of Mercia Marina provides a variety of shops, restaurants, and pleasant riverside walks. The location is also convenient for Littleover, which offers an even wider range of amenities.
This superbly appointed four-bedroom detached residence occupies a prime position on The Green in the highly desirable village of Findern. One of only two individually designed homes, it represents a rare opportunity to secure a distinguished new-build property within an established and picturesque village setting.
Currently under construction by respected local developers Sunrise Homes, the property has been thoughtfully designed to combine architectural presence with refined, contemporary interiors. Arranged over three beautifully proportioned floors, the accommodation offers an exceptional balance of elegant entertaining space and practical family living.
The ground floor opens into a welcoming entrance hall, leading to a cloakroom/WC and a well-appointed utility room. A formal living room, centred around an attractive feature chimney breast, offers a warm and inviting retreat — perfect for relaxing evenings or hosting guests. To the rear, the heart of the home is the impressive open-plan kitchen diner — a light-filled space designed for modern living and entertaining. Bifold doors open directly onto the landscaped garden, creating seamless indoor–outdoor flow.
The kitchen itself is finished to an exacting standard, featuring quartz worktops and premium Symphony cabinetry, combining clean contemporary design with everyday functionality.
A high specification runs throughout. Engineered oak flooring spans the ground floor, complemented by underfloor heating for added comfort. The upper floors are fully carpeted, while bathrooms feature tiled flooring and partially tiled walls, with purchaser choice available subject to stage of construction.
Finishing touches include quality Rose door furniture, brushed chrome switches and sockets, and LED spotlighting to key areas. Cat 6 cabling is installed to the living room and all bedrooms, and heating is provided via a gas-fired Indesit boiler. The property is also pre-wired for an electric vehicle charging point.
Externally, the rear garden will be landscaped and turfed, with Indian sandstone patio areas included within the purchase price — perfect for summer dining and entertaining. External lighting enhances both ambience and practicality.
Anticipated for completion in Summer 2026, this exceptional home offers a seamless blend of luxury, comfort and future-ready design in one of Findern’s most desirable locations.
4.60 x 1.22 (15'1" x 4'0")
1.26 x 1.16 (4'1" x 3'9")
1.41 x 1.00 (4'7" x 3'3")
4.62 x 4.50 (15'1" x 14'9")
The first floor hosts three generous bedrooms. The principal suite enjoys a rear aspect and benefits from a dressing area and private ensuite. Bedroom two is a well-proportioned double overlooking The Green, complete with fitted wardrobes and an additional storage cupboard. Bedroom three is another spacious double overlooking the garden. These rooms are served by a stylish family bathroom comprising bath, wash basin, WC and separate shower enclosure.
2.86 x 0.94 (9'4" x 3'1")
2.38 x 0.97 (7'9" x 3'2")
3.83 x 3.48 (12'6" x 11'5")
2.04 x 1.35 (6'8" x 4'5")
2.00 x 1.99 (6'6" x 6'6")
3.98 x 3.36 (13'0" x 11'0")
3.41 x 3.41 (11'2" x 11'2")
2.74 x 2.39 (8'11" x 7'10")
The second floor offers a further substantial double bedroom with its own ensuite and Velux windows, creating a bright and versatile space ideal for guests, independent living or a home office.
2.33 x 0.88 (7'7" x 2'10")
3.65 x 3.26 (11'11" x 10'8")
2.59 x 1.02 (8'5" x 3'4")
2.51 x 1.59 (8'2" x 5'2")
Although these particulars are thought to be materially correct their accuracy cannot be guaranteed and they do not form part of any contract.
Property data and search facilities supplied by www.vebra.com