Lowton Business Park, Newton Road, Lowton
Warrington
WA3 2AP
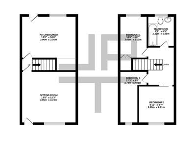
JonesPottsTaylor are pleased to present TO LET this three bedroom, paved fronted, end-terrace property. Situated in a popular residential location in Platt Bridge, Wigan, close to local schools, shops and amenities. The property briefly comprises of; entrance to living room and kitchen / dining room. To the first floor are three well proportioned bedrooms, and a further family bathroom with three piece suite. Outside to the rear is an enclosed low maintenance garden.
Viewings will be required and under a block viewing schedule.
Although these particulars are thought to be materially correct their accuracy cannot be guaranteed and they do not form part of any contract.
Property data and search facilities supplied by www.vebra.com