82 Blackdyke Road
Kingstown Industrial Estate
Carlisle
Cumbria
CA3 0PJ
Vicinity Homes are delighted to offer to the market this extended and immaculately presented, four bedroom detached family home situated to the East of Carlisle City Centre on the sought after Kingfisher Park development. The property is close to a range of local amenities, regular bus routes, popular Primary & Secondary Schools and has excellent access to the City Centre, the A69 and the M6 Motorway. The accommodation has been modernised by the current vendors and briefly comprises of an entrance porch, hallway, play room, lounge, utility room, cloakroom/WC and an extended, modern dining kitchen & family room with french doors to the garden. To the first floor there are four bedrooms, modern en suite shower room and a family bathroom. The property also benefits from double glazing, central heating, on site parking for two vehicles and gardens to front & rear. Viewing of this family home is absolutely essential to fully appreciate the accommodation on offer. An ideal purchase for a family. The property is offered to the market with no onward chain.
Proceed East along Warwick Road. Turn right onto Walkmill Crescent and follow the road to the left hand side into the Kingfisher Park Development. The property is situated on the right hand side, opposite the entrance to Curlew Walk and can be identified by our "For Sale" sign.
1.486m x 1.005m (4'10" x 3'3")Approached by a door to side, large double glazed window with two openings and tiled floor.
Incorporating coving to the ceiling and stairs to the first floor.
5.110m x 2.348m (16'9" x 7'8")Incorporating a double glazed window to front, double glazed window to side, radiator and built in storage.
4.050m x 4.083m (13'3" x 13'4")Incorporating a double glazed window to front, radiator, LVT flooring and a feature fireplace.
5.474m max x 5.778m max (17'11" max x 18'11" max)Incorporating a range of modern fitted wall and base units with complementary work surface over, integrated oven and integrated five ring gas hob with cooker hood over. Integrated dishwasher, 1.5 sink unit with mixer tap, space for a fridge/freezer, inset ceiling lights and wine cooler. Double glazed window to rear, two double glazed skylights to rear, double glazed french doors to rear, two radiators and LVT flooring.
4.196m x 1.667m (13'9" x 5'5")Incorporating a modern fitted wall units with complementary work surface and plumbing for a washing machine. Double glazed window to side, door to rear, radiator, LVT flooring, extractor fan and inset ceiling lights.
1.537m x 1.206m (5'0" x 3'11")Incorporating a wash hand basin set to vanity unit, WC, double glazed obscured window to side, radiator, LVT flooring and tiled splash areas.
4.090m x 3.448m (13'5" x 11'3")A double bedroom incorporating a double glazed window to front, radiator and built in storage cupboard.
1.773m x 1.550m (5'9" x 5'1")Incorporating a modern three piece suite comprising of a shower cubicle with waterfall shower over & attachment, wash hand basin set to vanity unit and WC. Double glazed obscured window to front, heated towel rail, tiled splash areas and extractor fan.
3.495m x 2.878m (11'5" x 9'5")A double bedroom incorporating a double glazed window to rear, radiator and loft access with a pull down ladder. The loft has lighting and is boarded.
3.999m max x 3.209m min x 2.459m (13'1" max x 10'6A double bedroom incorporating a double glazed window to front, double glazed window to side, radiator and built in storage cupboard.
3.209m max x 2.792m max x 1.899m min (10'6" max xIncorporating a double glazed window to rear and a radiator.
2.083m x 1.888m (6'10" x 6'2")Incorporating a three piece comprises of a bath with shower over, wash hand basin set to vanity unit and WC. Double glazed obscured window to rear, heated towel rail, tiling to all walls, tiled floor, panelled ceiling and extractor fan.
The property is approached by on site parking for two vehicles and a front garden with lawn area and shrubs. To the rear of the property there is a good sized rear garden with lawn area, patio seating area, outside power point, outside tap, garden shed and gated access to the front.
Please note, this property has NEVER flooded.
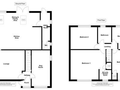
Please note, the floor plan is not to scale and should be used for illustrative purposes only.
https://find-energy-certificate.service.gov.uk/energy-certificate/0227-0200-8406-7561-8114
The property is in Council Tax Band D.
The property is Freehold.
Strictly through arranged appointments by Vicinity Homes. To arrange a viewing, please contact: T: 01228 599011 or E: sales@vicinityhomes.co.uk.
We routinely refer potential purchasers to Mortgage Advisers - Fisher Financial Associates. It is your decision whether you choose to deal with Fisher Financial Associates. In making that decision, you should know that we will receive commission from the company worth approximately £50 depending on any business written.
Referral Fees - Vicinity Homes work with preferred conveyancers for a house sale or purchase. You are under no obligation to use their services. Should you choose to use them, Vicinity Homes Estate Agents will receive a referral fee of between £120.00 to £150.00 on completion of a sale or purchase.
These particulars, whilst believed to be accurate, are set out for guidance only and do not constitute any part of an offer or contract - intending purchasers should not rely on them as statements or representations of fact, but must satisfy themselves by inspection or otherwise as to their accuracy. All electrical appliances mentioned in these details have not been tested and therefore cannot be guaranteed to be in working order.
To register your buying information and receive updates on all our available properties, please contact Vicinity Homes on 01228 599011 or via email to sales@vicinityhomes.co.uk.
We would be pleased to provide you with a free, no obligation valuation for your home. Please contact Vicinity Homes on 01228 599011 or via email to sales@vicinityhomes.co.uk to arrange an appointment.
Although these particulars are thought to be materially correct their accuracy cannot be guaranteed and they do not form part of any contract.
Property data and search facilities supplied by www.vebra.com