58 Manchester Road
Burnley
Lancashire
BB11 1HN
For Sale – Prime Town Centre Commercial Investment Opportunity
126 St James Street, Burnley, Lancashire
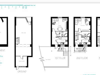
An excellent opportunity to acquire a substantial town Centre commercial property with strong development potential, located in a prominent position on St James Street in the heart of Burnley.
Key Features
Large ground floor retail/office space
Basement area offering additional storage or operational space
Separate entrance to upper floors
Potential for conversion to self-contained flats above (subject to planning)
High footfall location close to local amenities and transport links
Suitable for owner-occupiers or investors
Although these particulars are thought to be materially correct their accuracy cannot be guaranteed and they do not form part of any contract.
Property data and search facilities supplied by www.vebra.com