32 Derby Rd
Stapleford
Nottingham
NG9 7AA
FIELD FARM - PHASE 2.
**TICKNALL**
Developed by Peveril Homes.
Show homes due for opening in Spring 2023.
Viewings and further information via Robert Ellis Stapleford - 0115 9490044.
WELCOME TO FIELD FARM.
*TICKNALL*
Robert Ellis are delighted to welcome Field Farm, Stapleford developed by Peveril Homes.
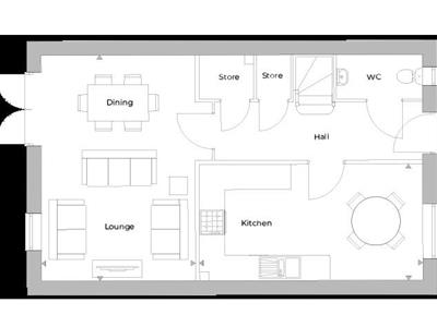
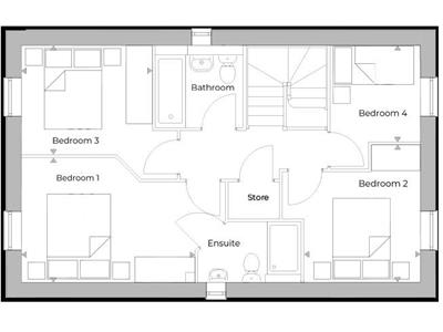
This is a four bedroom, two bathroom, three toilet detached family home with single garage and two parking spaces.
Measuring approx 1132sqft.
Situated on the outer rim of Stapleford, bordering Trowell, the site is ideally located close to a range of nearby transport links such as the A52, M1 and Nottingham Tram line as well as good local schooling and nearby shopping and the countryside.
Show homes due to open Spring 2023.
For more information contact Robert Ellis on 0115 9490044.
5.46 x 2.82 (17'10" x 9'3")
5.53 x 3.75 (18'1" x 12'3")
4.05 max x 2.90 (13'3" max x 9'6")
3.22 x 2.70 (10'6" x 8'10")
3.05 x 2.53 (10'0" x 8'3")
2.22 x 2.08 (7'3" x 6'9")
Each home will be independently surveyed during construction by LABC, who will issue their 10 year warranty certificate on completion of each homE
A NEW BUILD, FOUR BEDROOM DETACHED HOUSE.
Although these particulars are thought to be materially correct their accuracy cannot be guaranteed and they do not form part of any contract.
Property data and search facilities supplied by www.vebra.com