76-78 High Street
Tring
Hertfordshire
HP23 4AF
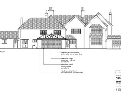
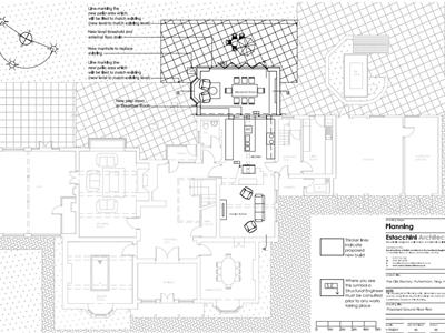
Dating back to the Edwardian period, this unique former rectory offers stunning character features and extends to over 5,000 sq ft. Located on the outskirts of Tring yet within easy reach of Berkhamsted, it provides spacious and flexible accommodation with formal gardens and a small lake. There is also the opportunity to acquire adjoining equestrian facilities (stabling and a ménage) by separate negotiations. Property benefits from approved planning permission for a single storey rear kitchen extension with open plan aspect.
The Old Rectory opens with a grand entrance and central staircase. Reception rooms include a large drawing room with an inglenook fireplace—a characterful, comfortable living space. The well-equipped kitchen features an adjoining breakfast room and utility, which lead onto a York stone terrace and garden. The dining room enjoys natural light and a feature fireplace. A summer room with separate access offers a versatile space ideal for a gym or business use.
Planning permission has been granted to extend the kitchen with a large sliding door providing uninterrupted garden views. Footings have been completed, and the plans can be viewed. The property is not listed, opening opportunities for further development and the potential to reinstate a swimming pool (previously removed).
The first floor comprises six bedrooms. The master suite is situated at the front of the house and features a four-piece en-suite and views over the Chiltern Hills. Bedroom two has garden views and an en-suite with underfloor heating and remote-control blackout blinds. Bedrooms three and four overlook the front and side aspects. Two additional bedrooms with their own bathroom are accessible via a separate staircase, offering potential to convert to an annexe or staff accommodation.
The landscaped gardens blend formal and informal areas, with a substantial patio area, mature trees, raised vegetable beds, fruit cages, an orchard, and a large natural pond. Established borders, and a greenhouse complete the picturesque setting.
Beyond the formal garden (available by separate negotiation) lies a stable block with four loose boxes and a tack room, plus a floodlit ménage. Electricity and water supply are connected. Traditional post-and-rail fenced paddocks and a rear access track lead to the main road, offering redevelopment potential subject to planning.
Other outbuildings include a tractor shed, a large log store, and a triple garage (one bay currently used as a workshop). Extensive parking is available to the front and side, accessed via electrically operated double gates.
This versatile property offers generous accommodation, privacy, and superb entertaining space on the edge of the Hertfordshire/Buckinghamshire border.
This truly versatile property offers wonderful accommodation, privacy and fantastic entertaining space on the edge of the Hertfordshire/Buckinghamshire borders.
Puttenham lies northwest of Tring on the Buckinghamshire/Hertfordshire border. Excellent communications include easy access to the A41 and the M25 (J20). Nearby railway stations at Cheddington, Tring, and Berkhamsted provide services to London Euston, with Chiltern Line services to London Marylebone from Wendover and Stoke Mandeville. Tring Park School for the Performing Arts, Berkhamsted School (Prep & Senior), Lockers Park Prep, Heatherton House, Wycombe Abbey, St Andrews School Oxford, Dragon School Oxford. The Aylesbury and Chesham grammar schools are also within easy reach. Tring highlights include Champneys Hotel, Spa & health club, The Artisan Bar & Grill, The Akeman, and PE Mead & Sons Farm Shop. Wilstone Reservoir and Nature Reserve are nearby
Thank you for showing an interest in a property marketed by Sterling Estate Agents.
Please be aware, should you wish to make an offer for this property, we will require the following information before we enter negotiations:
1. Copy of your mortgage agreement in principal.
2. Evidence of deposit funds, if equity from property sale confirmation of your current mortgage balance i.e. Your most recent mortgage statement, if monies in bank accounts the most up to date balances..
3. Passport photo ID for ALL connected purchasers and a utility bill. We are duty bound to complete anti money laundering (AML) checks on all connected purchasers. The charge for this is £75 plus VAT per person.
Unfortunately we will not be able to progress negotiating any offer unless we have ID, completed AML checks and proof of funds.
Although these particulars are thought to be materially correct their accuracy cannot be guaranteed and they do not form part of any contract.
Property data and search facilities supplied by www.vebra.com