Lowton Business Park, Newton Road, Lowton
Warrington
WA3 2AP
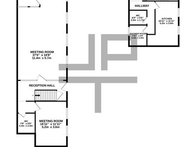
JonesPottsTaylor are pleased to present TO LET this COMMERCIAL ground floor office premises. Situated on a prominent main road position in Leigh town centre, close to major network and transport links. This unit comprises of; entrance hallway leading to a large open office space, a separate office, a separate board/meeting room, communal kitchen and two W.C facilities. Externally to the rear is an enclosed shared space for off road parking for five vehicles. ALL UTILITIY BILLS ARE INCLUDED
Viewings are highly recommended and will be required and under a viewing schedule.
Although these particulars are thought to be materially correct their accuracy cannot be guaranteed and they do not form part of any contract.
Property data and search facilities supplied by www.vebra.com