The Cross
Mold
Flintshire
CH7 1AZ
*DEVELOPMENT OPPORTUNITY*
A 17th Century Grade II Listed farmhouse with attached byre, stone barn, walled garden, woodland and grazing paddock, the whole extending to approximately 4.8 acres or thereabouts. Occupying a peaceful position on the fringe of this much sought after and convenient village community within a few minutes drive of Mold town centre. This charming property is in need of full renovation and offers a unique opportunity with planning approval and listed buildings consent already secured for the renovation of the farmhouse to provide a spacious five bedroom family home of considerable character and appeal. The detached barn also has consent for additional living accommodation. Externally there are large informal gardens with bespoke Eco-Pod ,a summer house and garden store, woodland and a steel framed barn to the rear. Adjoining paddock extending to approximately 2.4 acres with natural water supply. Detailed plans available.
Mold - 2.5 miles Chester - 15 miles Wrexham - 11.5 miles
Nercwys is a noted village community which stands in a slightly elevated position in the heart of rolling countryside. There is a primary school, church and popular bowling green in the village and the Nercwys Country Park, a designated Area of Outstanding Natural Beauty, is close by with numerous country walks and bridle paths. The county town of Mold is within a few minutes' drive which provides a comprehensive range of shopping facilities catering for most daily needs, schools for all ages, leisure facilities and popular restaurants. The area is also ideally placed for those wishing to commute to the large centres of employment such as Chester, Deeside and Wrexham, and both Liverpool and Manchester international airports are usually within an hours drive.
Approved Listed Building consent was granted by Flintshire County Council on 7th January 2021 'for conservation and repair of the existing farmhouse (currently vacant) and associated outbuildings. Conversion of the former byre into accommodation. Creation of a new holiday let in the C19 barn. Creation of flexible holiday let in the C19 extension to the farmhouse and associated works'. Planning Reference; 061452. Further applications regarding the conversion of the barn can be viewed on the Flintshire Planning Portal.
Wood panelled front door to reception hall.
Quarry tiled floor with access to rear store room and oak staircase to the first floor (bedroom 3 and 4)
4.78m x 4.22m (15'8" x 13'10")Accessed directly off the reception hall, floor boards have been lifted in preparation for the installation of a limecrete floor. Window to the front elevation with shutters, fireplace with tiled insert and built in cupboards to either side.
4.14m x 3.63m (13'7" x 11'11")Accessed directly off the reception hall. Two windows to the front elevation, tiled floor and open beamed ceiling.
4.11m x 4.14m (13'6" x 13'7")Window to the front elevation, exterior door to front, quarry tiled floor, large inglenook fireplace with arched bressumer and mantle shelf above, open beamed ceiling, electricity meters, internal door to kitchen.
4.09m x 3.68m (13'5" x 12'1")A dual aspect room with windows to either side, terrazzo tiled floor, exterior door to the rear of the building and turned staircase to the first floor accommodation.
5.13m x 2.77m (16'10" x 9'1")Located to the rear of the building. Accessed from reception hall. Slate has been dismantled, roof currently tarpaulined for weather proofing.
Bedrooms 1 and 2 are accessed via staircase in kitchen, bedrooms 3 and 4 via main staircase.
4.17m x 3.76m (13'8" x 12'4")Dormer window to the front, exposed purlins, pedestal wash basin, exposed floorboards and internal door with second staircase leading down to the kitchen and to a loft room.
4.17m x 3.68m (13'8" x 12'1")Dormer window to the front elevation, exposed floorboards and internal door leading to bedroom one. with access to staircase leading down to reception hall.
3.05m'3.35m x 3.20m overall (10''11" x 10'6" overaWindow to rear.
Accessed via main staircase, window to rear.
3.91m x 2.97m (12'10" x 9'9")Window to the front and built-in cupboard.
2.77m x 2.69m (9'1" x 8'10")Window to the front and built-in cupboard.
2.26m x 1.93m (7'5" x 6'4")Comprising cast iron bath, pedestal wash basin and low flush WC. Window and airing cupboard with hot water cylinder tank.
13.39m x 4.19m (43'11" x 13'9")Three outer doors to the front, exterior door to rear, high vaulted ceiling and exposed beams.
4.27m x 3.63m (14' x 11'11")Cobbled floor, original wooden stall, hayrack, and bridle wall hooks.
5.13m x 4.19m (16'10" x 13'9")External access via small set of stone steps. Retains original bread oven and copper water heater. Cellar Below.
The property occupies a secluded position along this minor lane on the fringe of the village and is approached via a long driveway with metal gate which extends to the front of the property providing ample parking/turning. There is additional parking to the rear of the building.
Informal gardens extend to the front of the property with well stocked mixed border of shrubs and herbaceous perennials surrounding a lawned area, and a selection of mature trees. An inner, walled courtyard style garden (currently in use as a vegetable garden) extends to the front of the property with gated access to the yard and side of the house. To the side of the house there is a purpose built timber framed cabin with shower and w/c, with power and water connected. There is a separate wooden summerhouse and useful timber framed garden store. To the rear of the detached barn are extensive informal walled gardens with a pond and a lower courtyard garden (formerly the site of a greenhouse), various mature trees and views across to surrounding countryside.
A substantial two storey stone and slated building with planning for conversion to provide additional accommodation. Presently comprising:
GROUND FLOOR:
4.11m x 4.29m (13'6" x 14'1")Comprising coach house with arched entrance.
4.14m x 3.63m (13'7" x 11'11")
4.14m x 3.96m (13'7" x 13')
4.57m x 4.57m (15' x 15')
8.36m x 4.11m (27'5" x 13'6")Accessed via exterior exterior stone steps. Four window openings and exposed beams, fireplace.
Located to the rear of the building.
For identification purposes only.
From the Agent's Mold Office proceed along Wrexham Street for about 1 mile taking the right turning signposted Treuddyn. Continue under the Bypass for approximately one third of a mile and take the right turning signposted Nercwys and Eryrys. Continue for a further mile and take the left turning into Nercwys village. Proceed through the village centre and turn left after the Church onto Ffordd Pen y Bryn, passing the local primary school on the right , whereupon the entrance to Pen y Bryn Farm will be found after a short distance on the left hand side.
Private sewage treatment plant with new soakaways installed in 2019.
Flintshire County Council - previously assessed as Tax Band F, the property has currently been removed from the Council Tax register until renovation works are completed.
Flintshire County Council - Tax Band To Be Confirmed.
Understood to be Freehold. Purchasers should verify this through their solicitor.
Intending purchasers will be asked to produce identification documentation before we can confirm the sale in writing. There is an administration charge of £30.00 per person payable by buyers and sellers, as we must electronically verify the identity of all in order to satisfy Government requirements regarding customer due diligence. We would ask for your co-operation in order that there will be no delay in agreeing the sale.
The Material Information Report for this property can be viewed on the Rightmove listing. Alternatively, a copy can be requested from our office which will be sent via email.
Mortgage referrals, conveyancing referral and surveying referrals will be offered by Cavendish Estate Agents. If a buyer or seller should proceed with any of these services then a commission fee will be paid to Cavendish Estate Agents Ltd upon completion.
By appointment through the Agent's Mold Office 01352 751515.
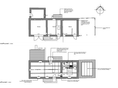
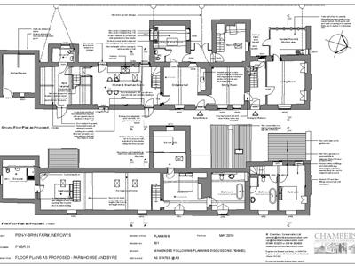
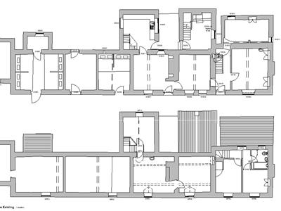
FLOOR PLANS - included for identification purposes only, not to scale.
DW/PMW
Although these particulars are thought to be materially correct their accuracy cannot be guaranteed and they do not form part of any contract.
Property data and search facilities supplied by www.vebra.com