Ground Floor,
10 The Drive
Hove
East Sussex
BN3 3JA
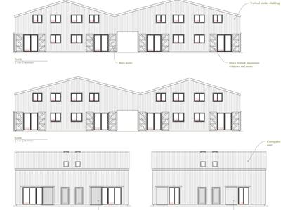
Situated just off Brighton Road in the charming village of Henfield, this exceptional barn conversion presents a remarkable opportunity for developers and investors alike. The site has received Class Q conversion approval from an existing barn, allowing for the creation of four stunning four-bedroom houses, each featuring three bathrooms and ample parking.
Spanning approximately 1600 square feet, these thoughtfully designed homes will offer spacious living areas, perfect for families seeking comfort and style. The location is particularly appealing, as it is within walking distance to Henfield's vibrant high street, where residents can enjoy a variety of shops, cafes, and local amenities.
Henfield itself is a picturesque village, surrounded by beautiful countryside, making it an ideal setting for those who appreciate both rural charm and convenient access to urban facilities. This plot not only promises a lucrative investment but also the chance to contribute to the community by providing modern housing in a desirable area.
Although these particulars are thought to be materially correct their accuracy cannot be guaranteed and they do not form part of any contract.
Property data and search facilities supplied by www.vebra.com