242 Dedworth Road
Windsor
Berkshire
SL4 4JR
Nestled on Clewer Hill Road in the charming town of Windsor, this exceptional parcel of land presents a rare opportunity for an experienced property developer with PLOTS FOR 3 NEW HOUSES. With planning permission already secured, you can commence building immediately, making this an enticing prospect for those looking to create beautifully appointed family homes in a highly sought-after location.
The site is ideally situated within a gated community, ensuring privacy and security for future residents. Furthermore, it is conveniently located near outstanding schools, making it an attractive option for families seeking a nurturing environment for their children.
This is not just a piece of land; it is the last building opportunity available in the immediate area, allowing you to make a significant impact on the local community. With the potential to develop three exceptional homes, this project promises to be both rewarding and profitable.
We are pleased to bring to the market this exceptional freehold development opportunity, with plots for 3 NEW HOUSES, offered at an asking price of £1,000,000.
The site offers planning permission granted to build approximately 516.35 sq m (5,558 sq ft) gross internal area. Please note that this figure includes the loft room, which is fully habitable with sufficient headroom. All marketing material will reflect the full gross internal area and will not exclude the second floor accommodation.
The sale is supported by full drawings and a positive appeal decision, with detailed planning consent in place. This is a ready to go opportunity offering clarity and certainty for a well prepared developer.
This is not intended to be a speculative sell and forget project. The site is accessed via a private road serving existing residents, therefore we are seeking a first class builder with strong financial standing and a proven track record of delivering clean, efficient builds. The expectation is for a well managed programme with minimal disruption over the anticipated twelve month build period.
From a development perspective, the site offers a number of significant advantages:
• Flat site
• No demolition required
• All services laid on up to the boundary
• No requirement to form a bell mouth or undertake works to the public highway
• No need to cut into the public road for manholes or services
• Secure and contained site
• Detailed planning consent already granted
• No long access road to construct
• Straightforward construction design
The houses have been designed as clean, efficient forms rising directly upward, avoiding complicated rear projections or structural complexity. The only architectural detailing is focused on the front elevation to enhance kerb appeal, keeping construction practical and cost effective.
This represents a rare opportunity to acquire a well considered, implementable scheme in a highly controlled and desirable setting.
Please contact us for the full information pack including plans and decision notice.
SALE BRIEF (Rev2) – HIGHGATE PHASE 2
Highgate, 23 Clewer Hill Road, Windsor, Berkshire, SL4 4BU
6 February 2026
SALE PRICE: Offers are invited for £1m (£1,000,000.00) for the freehold interest of the site.
1.
OVERVIEW OF THE DEVELOPMENT
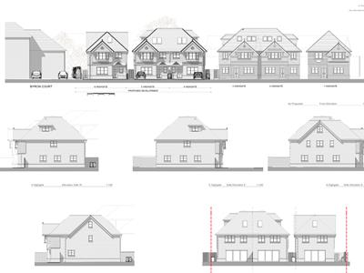
Highgate Phase 2 comprises THREE PLOTS new residential dwellings to be constructed at the end of
the existing private road known as Highgate, which currently serves four houses (Phase 1,
completed approximately six years ago).
The consented scheme includes:
• Two semi-detached houses, each 164.8 sqm
• One detached house, 186.8 sqm
• Total Gross Internal Area: 516.4 sqm (5,558 sq ft), including second-floor areas measured to
1.5m ceiling height.
Planning References: Royal Borough of Windsor and Maidenhead
• Application: 24/03048
• Appeal: APP/T0355/W/25/3369611
2.
LAND TO BE SOLD
The seller will sell the part of the land identified on Drawing PL01A comprising the three
new house plots, excluding the communal access road.
All house plots will have a legal right of access over Highgate Private Road, which remains
owned by the seller.
The current 2025 estate/service charge for Highgate Phase 1 properties is £70 per month per house anticipate a 15% increase.
A covenant will be registered requiring each new freehold house to contribute a fair proportion of
the maintenance costs for:
• Highgate private road
• Communal planting
• Electric entrance gates
Contributions will be payable to Highgate Private Road Fund, a not-for-profit entity
established for this purpose. Copies of previous accounts and articles of association are
available.
3.
BUYER OBLIGATIONS (CRITICAL CONDITIONS OF SALE)
3.1 Construction in Accordance with Approved Plans
The Buyer must undertake to:
• Build the development strictly in accordance with the existing planning permission.
• No alternative planning application or variation is permitted.
• Commence and complete construction within 12 months of purchase to minimise disruption
to existing Highgate freeholders.
• No extensive due diligence period is acceptable. One month permitted. Seller does not
provide any reliance certificate. Seller will arrange for architect to release copyright and
provide dwg format drawings only.
• Buyer provides one new Highgate Road sign for 1-6 Highgate, Repairs
Highgate road service at end of contract.
• Buyer builds an extension of the access road with porous block pavers and SUDS drainage
system with underground pipes and manholes for the seller. Provides an easement within the
title of 6 Highgate for access to the strategic storm water drainage to the new site
The Seller will only proceed with the sale once these obligations are expressly confirmed by the
Buyer and incorporated into the legal contract.
3.2 Statutory Charges and Financial Liabilities
The Buyer will be responsible for all statutory costs, taxes, levies, and local authority charges
relating to the approved scheme and its construction.
Approximate Known liabilities include (but are not limited to):
• Community Infrastructure Levy (CIL): £173,045.00
• Biodiversity Net Gain (BNG): Net loss of 0.2287 habitat units (32.57% decrease) – Buyer to
bear the full cost of offsetting
• Carbon Offset Payment: £12,669.37
• Council Monitoring Fees: Amount to be confirmed
All other statutory or regulatory charges arising will also be fully borne by the Buyer.
All the above are approximate values.
3.3 Freehold Sales Only – No Leasehold Structures
The Buyer must covenant that:
• The completed houses must not be sold as leasehold properties, and
• No ground rent or equivalent ongoing charge may be attached.
Each dwelling must be registered as an independent freehold title.
4.
DRAINAGE AND UTILITIES
The drainage strategy approved with the planning application includes:
• A soakaway system beneath the road, with
• An overflow via hydro-brake into a Thames Water manhole and sewer located within the
adjacent Byron Court.
The manhole is accessible from the Highgate side as it partially lies under the fence line, however,
no negotiations have yet taken place with the freeholders of Byron Court regarding access or
easements, and these arrangements will be the responsibility of the Buyer to secure.
5.
BUILD A FENCE
The buyer will construct a 1.8m high close boarded fence along the boundary line between
the existing 3 Highgate and future 4 Highgate
Although these particulars are thought to be materially correct their accuracy cannot be guaranteed and they do not form part of any contract.
Property data and search facilities supplied by www.vebra.com