13 Crewe Road, Alsager
Stoke On Trent
Staffordshire
ST7 2EW
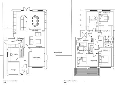
An EXTENDED three bedroom detached family home on a highly sought-after road in Alsager, offered for sale with planning permission approved to create a four bedroom home with a separate one bedroom Annexe! (Cheshire East Planning Ref 25/1476/HOUS)
This spacious home has been extended to the rear, creating a fantastic open plan kitchen/living/dining space at the heart of the home that could be easily partitioned to create separate spaces. An entrance hallway leads to the lounge and fitted kitchen having a range of integrated appliances giving access to the downstairs WC and an orangery overlooking the vast rear garden. The garage is also accessible from the home. To the first floor, two very good sized double bedrooms, a third single bedroom and a refitted family bathroom suite completing the internal accommodation.
Ample off-road parking is provided via a tarmac driveway and the adjoining garage, whilst the sizeable rear garden features patio and lawned areas, with mature shrubs and border hedges. The rear garden offers an excellent degree of privacy and is much larger than you may expect, creating an idyllic setting to enjoy the best of the summer weather.
Situated on Pikemere Road, the property is perfectly placed for the wealth of amenities within Alsager, as well as commuting routes such as the M6, A500 and A34. Several schools are nearby, including Pikemere Primary School (quite literally across the road!) and Alsager School, whilst leisure facilities such as Alsager Leisure Centre and Alsager Sports Hub are also within easy reach.
A fantastic family home offered for sale with the benefit of planning permission for further expansion! Please contact Stephenson Browne to arrange your viewing.
UPVc panelled entrance door having glazed frosted insets. Double panel radiator. Stairs to the first floor.
3.495 x 4.310 (11'5" x 14'1" )Double glazed window to the front elevation. Modern vertical radiator. Multi fuel burner with wooden mantle and tiled hearth.
2.496 x 3.379 (8'2" x 11'1")Range of wall, base and drawer units with wooden work surfaces over. Integrated double oven. Double panel radiator.
3.331 x 2.402 (10'11" x 7'10")Double glazed window to the rear elevation. Range of wall, base and drawer units incorporating a single drainer sink unit with mixer tap. Integrated dishwasher. Induction hob. Breakfast bar. Space for a freestanding fridge freezer.
2.876 x 3.686 (9'5" x 12'1")Double glazed windows to the side and rear elevation. Double glazed French doors opening to the rear garden. Double panel radiator.
UPVc panelled door having glazed frosted insets. Door into garage door into:-
1.884 x 1.002 (6'2" x 3'3")Two piece suite comprising a low level WC with push button flush and a vanity wash hand basin with mixer tap and storage cupboard below. Double glazed frosted window to the side elevation.
Double glazed frosted window to the side elevation. Doors to all rooms.
4.354 x 3.328 (14'3" x 10'11" )Double glazed window to the front elevation. Single panel radiator.
3.404 x 3.313 (11'2" x 10'10")Double glazed window to the rear elevation. Single panel radiator. Storage cupboard housing the wall mounted gas central heating boiler.
2.221 x 2.880 (7'3" x 9'5")Double glazed window to the front elevation. Single panel radiator.
2.234 x 2.563 (7'3" x 8'4")Three piece suite comprising a low level WC with push button flush, vanity wash hand basin with mixer tap and storage cupboard below and a panelled bath with rainfall shower having rinser attachment. Double glazed frosted windows to the side and rear elevation. Heated towel rail.
The property is approached by a tarmac driveway providing ample off road parking for numerous vehicles leading to an attached garage. Partially walled boundary. Access gate to the rear garden. The rear is mainly laid to lawn with borders housing a variety of trees, shrubs and plants giving a great degree of privacy. A paved pathway leads to the rear of the garden with a paved patio area with a covered decked area perfect for outside entertaining.
2.486 x 5.047 (8'1" x 16'6")Up and over door to the front. Power and lighting. Door to the rear. Storage cupboard.
Note the property has solar panels which are owned by the property.
Agents are required by law to conduct Anti-Money Laundering checks on all those buying a property. Stephenson Browne charge £49.99 plus VAT for an AML check per purchase transaction. This is a non-refundable fee. The charges cover the cost of obtaining relevant data, any manual checks that are required, and ongoing monitoring. This fee is payable in advance prior to the issuing of a memorandum of sale on the property you are seeking to buy.
The council tax band for this property is C.
We have been advised that the property tenure is FREEHOLD, we would advise any potential purchasers to confirm this with a conveyancer prior to exchange of contracts.
The copyright of all details, photographs and floorplans remain the possession of Stephenson Browne.
Although these particulars are thought to be materially correct their accuracy cannot be guaranteed and they do not form part of any contract.
Property data and search facilities supplied by www.vebra.com