54-56 Barking Road
London
E6 3BP
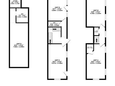
Unit D - £700pcm (Ground Floor Rear)
McDowalls are delighted to offer to the commercial rental market, A building located a stones throw from Bethnal Green Underground Station.
This property is a three storey detached Commercial Building in the highly desired location of Bethnal Green. Property holds an E use class.
CEPC - Band C
WATER / WASTE - Mains (Castle Water)
ELECTRIC - Mains (EON)
BUSINESS RATES - TBC
PARKING - On Street & Permit Required From Tower Hamlets Council
NB - Tenants are responsible for monthly rental payments, metered electric, business rates (If applicable) broadband & commercial waste management.
Although these particulars are thought to be materially correct their accuracy cannot be guaranteed and they do not form part of any contract.
Property data and search facilities supplied by www.vebra.com