Bruce House
17 The Street
Hatfield Peverel
Essex
CM3 2DP
*** Guide Price £180,000 to £200,000 ***
The plot is situated opposite a recreational park only 0.2 mile walk from a mainline station with trains into London Liverpool Street
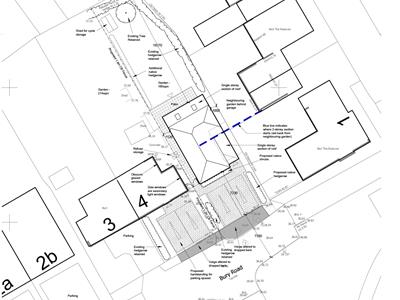
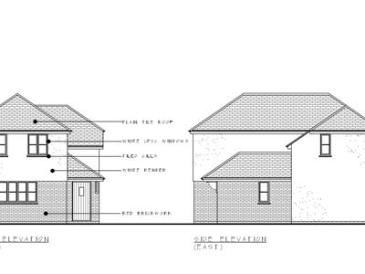
The planning permission is for a three-bedroom detached house. The accommodation comprises an open plan living room/kitchen area to the rear and formal lounge to the front. There is ensuite facilities to the master bedroom plus a family bathroom and ground floor cloakroom. Further information is available on Braintree Council website (application number is 25/02590/FUL).
The plot is for sale on an informal tender basis. All offers are to be submitted by 10am on the 3rd March 2026 using the enclosed form.
Hatfield Peverel Train Station - 0.2 miles
Hatfield Peverel School - 1.1 miles
A12 - 0.6 miles
Chelmsford City - 6.5 miles
London Stansted Airport - 20.4 miles
All mileages are approx.
The following has to be agreed by the new owners:
Demolish the garage and shed within the development plot
Move existing oil tank from the development plot to 4 Bury Lane inside retained garden
Install new boundary fence and garden gate for 4 Bury Lane.
Install new driveway for 4 Bury Lane (including altering the kerb to a dropped kerb and remove some of existing shrubbery.
All the above needs to be completed before work commences on the new plot and these works to be carefully arranged with both the owner and tenant of 4 Bury Lane.
Strictly by appointment only through the selling agent Paul Mason Associates 01245 382555.
We wish to inform all prospective purchasers that we have prepared these particulars including text, photographs and measurements as a general guide. Room sizes should not be relied upon for carpets and furnishings. We have not carried out a survey or tested the services, appliances and specific fittings. These particulars do not form part of a contract and must not be relied upon as statement or representation of fact.
Those wishing to make an offer for the above property should complete the form set out below and send it to Paul Mason Associates, Bruce House, 17 The Street, Hatfield Peverel, Essex CM3 2DP to arrive not later than 10am on Tuesday 3rd March 2026. Please clearly write the address of the above property on the envelope so it is not opened prior to the appointed time. Please also put your name on the back of the envelope so that you can check by telephone that it has arrived. The owners do not commit themselves to accepting the highest, or any offers. All offers will be treated in the strictest confidence.
1.Name: ……………………………………………
2.Address
…………………………………………………
…………………………………………………
3.Telephone No:
(Home) ………………………………..
(Mobile) ………………………………......
4.Amount of offer (Please make this an uneven figure):
…………………………….. subject to contract.
Condition of sale stated on the property details have been agreed.
5.Can you exchange contracts within one month of date of issue of the draft contract.
……………………………………………………
6.Is your purchase dependent on the sale of another property?
……………………………………………………
7.How will you be funding your purchase of this property – ie: cash or mortgage?
…………………………………………………………………….
8.Is your offer subject to survey?
………………………………………………………………….
9.Any other information you feel relevant to the purchase of the property.
………………………………………………………………………………………………………..
………………………………………………………………………………………………………..
Sign…………………………………...................
Print Name……………………………………..
Sign…………………………………...................
Print Name……………………………………..
Date …………………………………................
Although these particulars are thought to be materially correct their accuracy cannot be guaranteed and they do not form part of any contract.
Property data and search facilities supplied by www.vebra.com