10, Central Parade, New Heston Road
Heston
Middlesex
TW5 0LH
*Planning Approved*
Freehold land adjacent to Timbers Lodge, situated just of Leatherhead Road in Ashtead, with planning permission to construct four homes.
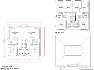
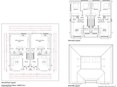
The site currently forms part of the grounds for Timbers Lodge, and will be sold as a separate title, extending to approx. 0.30 acre. Planning is approved for, two pairs of semi detached properties, each measuring 1,260 sq.ft over two floors. Total GIA 5,040 sq.ft.
Positioned on the sought-after Ottways Lane/Leatherhead junction in the heart of Ashtead, this site offers an exceptional opportunity for developers seeking a prime Surrey location with strong demand for high-quality homes. Ashtead is an established, affluent village with excellent schools, extensive green spaces and fast commuter connections into London, making it highly desirable for family buyers and professionals alike. The area consistently achieves robust sales values, particularly for premium residential schemes, ensuring strong market absorption and attractive exit potential for well-designed developments. scl-land
Although these particulars are thought to be materially correct their accuracy cannot be guaranteed and they do not form part of any contract.
Property data and search facilities supplied by www.vebra.com