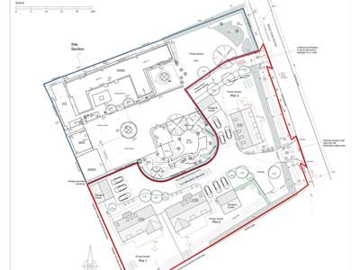
Exclusive Plot of Land with outlined Planning Permission for Three Executive Barn-Style Homes set with
picturesque countryside views located on the outskirts of Frampton Fen. This exceptional plot of land offers a rare opportunity to create a bespoke residential development of three substantial four bedroom homes, with detached garages. With Outlined planning permission (B/23/0207) already in place, you can embark on a exciting project that combines rural charm with modern elegance. Located between Frampton Fen and Wyberton, local superstores, schools, transport and amenities are all nearby in Boston.
Although these particulars are thought to be materially correct their accuracy cannot be guaranteed and they do not form part of any contract.
Property data and search facilities supplied by www.vebra.com