Lowton Business Park, Newton Road, Lowton
Warrington
WA3 2AP
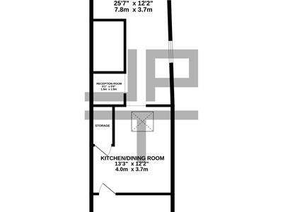
JonesPottsTaylor are delighted to offer TO LET this one bedroom, first floor apartment. Located above a commercial unit, situated in Atherton town centre, close to network links, schools, shops and amenities. The property briefly comprises of; private entrance, living room benefitting from an additional reception room / space, a separate kitchen / dining room, a double bedroom and a further shower room with three piece suite. Outside is a communal enclosed yard.
Viewings will be required and under a block viewing schedule.
Although these particulars are thought to be materially correct their accuracy cannot be guaranteed and they do not form part of any contract.
Property data and search facilities supplied by www.vebra.com