82 Blackdyke Road
Kingstown Industrial Estate
Carlisle
Cumbria
CA3 0PJ
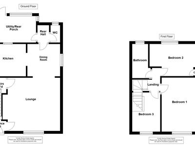
Vicinity Homes are delighted to offer to the market this stunning, renovated, three bedroom semi detached house situated within a popular residential area to the West of Carlisle City Centre. The property is close to a range of local amenities, regular bus route, popular Primary & Secondary Schools and has excellent access to the Western City Bypass providing transport links to the M6 Motorway. The accommodation briefly comprises of an entrance hallway, lounge, dining room, new kitchen, rear hallway, cloakroom/WC and a spacious utility/rear porch. To the first floor there are three bedrooms and a new bathroom. The property also benefits from double glazing, central heating, on site parking and gardens to front & rear. Viewing is absolutely essential to fully appreciate the accommodation on offer. An ideal purchase for a first time buyer or a family. The property is offered to the market with no onward chain.
Proceed West along Newtown Road and turn left onto Shady Grove Road. Turn left onto Brookside and follow the road. The property is situated on the right hand side and can be identified by our "For Sale" sign.
Approached by a door to front, incorporating stairs to the first floor.
3.965m x 3.620m (13'0" x 11'10")Incorporating a double glazed window to front, radiator, inset ceiling lights and under stairs storage cupboard.
2.759m x 2.721m (9'0" x 8'11")Incorporating a double glazed window to side, radiator and inset ceiling lights.
2.731m x 2.614m (8'11" x 8'6")Incorporating a range of modern fitted wall and base units with complementary work surface over, integrated oven and integrated hob with cooker hood over. Plumbing for a dishwasher, 1.5 sink unit with mixer tap, space for a fridge/freezer, double glazed window to rear and inset ceiling lights.
Incorporating inset ceiling lights.
1.390m x 0.798m (4'6" x 2'7" )Incorporating tiled floor, tiled splash areas, double glazed obscured window to rear and a WC with an inset wash hand basin.
3.421m x 2.707m (11'2" x 8'10")Incorporating a range of modern fitted base units with work surface over, plumbing for a washing machine and space for a tumble drier. Sink unit with mixer tap, radiator, double glazed window to side, double glazed window to rear and door to rear.
Incorporating inset ceiling lights and loft access.
3.622m x 2.638m (11'10" x 8'7")A double bedroom incorporating a double glazed window to front and a radiator.
4.048m x 2.736m (13'3" x 8'11")A double bedroom incorporating a double glazed window to rear, radiator and built in storage cupboard.
2.738m max x 2.612m max (8'11" max x 8'6" max)Incorporating a double glazed window to front and a radiator.
2.698m x 1.325m (8'10" x 4'4")Incorporating a modern three piece suite comprising of a bath with waterfall shower over & shower attachment, pedestal wash hand basin and WC. Double glazed obscured window to rear, heated towel rail, tiled floor, tiled splash areas, inset ceiling lights and extractor fan.
The property is approached by double gated access to a block paved driveway, shillied area and flower and shrub beds leading to the side. At the rear of the property there is a good sized garden with a raised patio seating area, garden and outside tap.
Please note, the floor plan is not to scale and should be used for illustrative purposes only.
https://find-energy-certificate.service.gov.uk/energy-certificate/9301-3047-8207-1845-3204
The property is in Council Tax Band A.
The property is Freehold.
Strictly through arranged appointments by Vicinity Homes. To arrange a viewing, please contact: T: 01228 599011 or E: sales@vicinityhomes.co.uk.
We routinely refer potential purchasers to Mortgage Advisers - Fisher Financial Associates. It is your decision whether you choose to deal with Fisher Financial Associates. In making that decision, you should know that we will receive commission from the company worth approximately £50 depending on any business written.
Referral Fees - Vicinity Homes work with preferred conveyancers for a house sale or purchase. You are under no obligation to use their services. Should you choose to use them, Vicinity Homes Estate Agents will receive a referral fee of between £120.00 to £150.00 on completion of a sale or purchase.
These particulars, whilst believed to be accurate, are set out for guidance only and do not constitute any part of an offer or contract - intending purchasers should not rely on them as statements or representations of fact, but must satisfy themselves by inspection or otherwise as to their accuracy. All electrical appliances mentioned in these details have not been tested and therefore cannot be guaranteed to be in working order.
To register your buying information and receive updates on all our available properties, please contact Vicinity Homes on 01228 599011 or via email to sales@vicinityhomes.co.uk.
We would be pleased to provide you with a free, no obligation valuation for your home. Please contact Vicinity Homes on 01228 599011 or via email to sales@vicinityhomes.co.uk to arrange an appointment.
Although these particulars are thought to be materially correct their accuracy cannot be guaranteed and they do not form part of any contract.
Property data and search facilities supplied by www.vebra.com