33 Holywell Street
Chesterfield
Derbyshire
S41 7SA
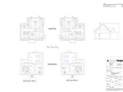
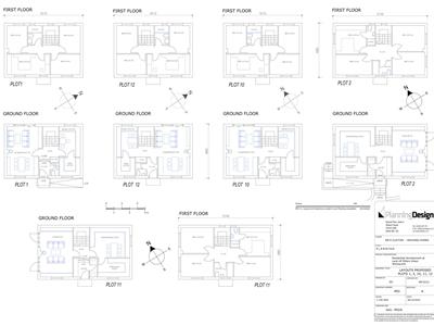
DEVELOPMENT OPPORTUNITY – FULL PLANNING
A rare opportunity to acquire a live development agreement with full planning consent in place.
Full planning is in place, providing a clear route to delivery with defined obligations and deferred land payment, making this an attractive proposition for developers and investors seeking a ready-to-go site.
An immediate opportunity for another developer to step in and deliver the scheme.
Terms of Sale:
£650,000 upfront to acquire the development agreement
Build Plot 12 to a standard turnkey specification (spec available, no high-end finishes)
£300,000 deferred payment to the original landowner, payable on completion of the full site
Contact Pinewood Properties for more information.
Although these particulars are thought to be materially correct their accuracy cannot be guaranteed and they do not form part of any contract.
Property data and search facilities supplied by www.vebra.com