1, Princess Street
Knutsford
Cheshire
WA16 6BY
Located close to the village of Lower Peover, we are pleased to offer a development opportunity for a four bedroom detached property with full planning permission already granted.
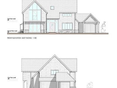
The proposed dwelling will be situated within a notably private development of bespoke homes and extends to approximately 1,900 sq ft.
Plot size - 1,350m2 = 0.34 acres
House interior 176.25m2/ 1897 ft2 (from quad drawing)
Arranged over two traditional floors, the accommodation is designed to comprise a spacious entrance hallway, a generous lounge, a separate study/fourth bedroom, and a large open-plan kitchen/dining room spanning the rear of the property, enjoying views over the rear gardens.There is also a utility room and downstairs cloakroom for convenience.
The first floor is arranged around a galleried landing and includes a principal bedroom with a good-sized en-suite, a guest bedroom with en-suite, and two further bedrooms served by a family bathroom.
The approved design requires the property to be constructed using reclaimed brick, wavy-edge cladding, and lime render, creating an immediate sense of character and age for what is a thoughtfully designed family home.
The land is being sold as seen, and any amendments to the existing planning permission would need to be applied for following completion of the purchase. The site will be cleared to ground level upon completion.
All enquiries should be made via Wright Marshall and we ask that the vendors privacy is respected and no site visits are made without an appointment being made,
Although these particulars are thought to be materially correct their accuracy cannot be guaranteed and they do not form part of any contract.
Property data and search facilities supplied by www.vebra.com