2-4 Norwich Road
Claydon
Suffolk
IP6 0DF
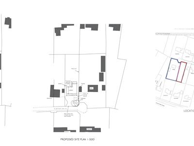
PRIME BUILDING PLOT with outline planning permission for a detached bungalow situated on Elmham Drive, Nacton, Ipswich. An exciting opportunity for a self build home in tucked away position at the end of a private road. Plot size 200ft x 50ft (sts) Southerly facing to the rear.
Ipswich is the county town of Suffolk and provides a comprehensive range of educational, commercial and recreational facilities and an excellent link to London Liverpool Street Railway Station (about 70 mins). The town has two shopping centres, shops, restaurants, bars, two multi screen cinemas, music & entertainment venues and many sports clubs and societies. The Waterfront docks has an on going regeneration providing an excellent marina, recently built high tech University & college, restaurants, bars and residential development.
Convenient edge of town location with access to Ipswich, Woodbridge, Felixstowe and within easy reach of local amenities, schools, and transport links.
Do not miss the chance to explore the potential that this land on Elmham Drive has to offer. It is a rare find in a desirable location for the perfect self build.
Plot size 200ft x 50ft (sts)
Outline permission to build a 126 sq m ( 1,356 sq ft ) detached bungalow
Southerly facing parcel of land mainly of lawn with some mature trees.
Outline Planning Permission
Town And Country Planning Act 1990
The Town and Country Planning (Development Management Procedure) (England) Order 2015
Our reference DC/25/3289/OUT
Date valid 22 August 2025 - APPROVED 30th JANUARY 2026
Site: Land adjacent to Wilby, Elmham Drive, Foxhall
Parish Foxhall
Proposal Outline Application (Some Matters Reserved) - Erection of 1no. self-build
dwelling
East Suffolk Council hereby grant outline permission in accordance with the application, plans and
particulars, subject to the submission of “reserved matters” and compliance with the following
conditions as set out below. Your further attention is drawn to any informatives that may have
been included.
In determining the application, the council has given due weight to all material planning
considerations including policies within the development plan - further details available.
AGENTS NOTE: Prospective purchasers are advised to satisfy themselves with any rights of access, covenants, planning conditions, available services and any restrictions via their solicitor prior to unconditional exchange of contracts.
CIL Liability
For self-builders, CIL is exempt and the home occupiers will have agreed to remain in residence for 3 years from completion before the property can be sold ( prior to this date CIL tax will be payable ).
7 Great Colman Street, Ipswich, IP4 2AA TO VIEW PLEASE CALL 01473 253366 or email ipswich@hamilton-smith.com
Although these particulars are thought to be materially correct their accuracy cannot be guaranteed and they do not form part of any contract.
Property data and search facilities supplied by www.vebra.com