6 Cornmarket
Louth
Lincolnshire
LN11 9PY
TES Property offer the exciting opportunity to purchase a building plot with full planning permission on an exclusive development of only four properties located in the village of Partney.
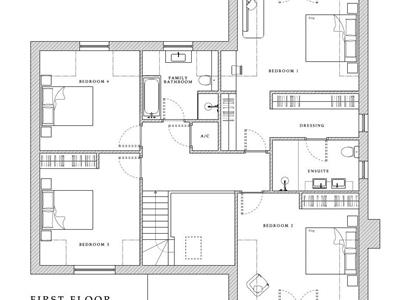
With full planning permission granted for an exclusive detached property with a garage which internally comprises an open plan kitchen dining living area, additional lounge, study, utility and ground floor shower room. To the first floor there are four double bedrooms with an en-suite and dressing area to bedroom 1, along with an additional family bathroom.
The charming village of Partney is situated on the edge of the Lincolnshire Wolds surrounded by stunning countryside, a designated an Area of Outstanding Natural Beauty. The village is within easy reach of the quaint market town of Spilsby, which is approximately 16 miles to the popular town of Louth and only 13 miles to the coastal town of Skegness. The village of Partney has a primary school and parish church, whilst other amenities are only a short drive away.
02768/25/FUL
The plot benefits from a 3-phase electrical supply in place.
The property is believed to be freehold and we await solicitors confirmation.
By prior appointment through TES Property office in Louth 01507 601633 admin.louth@tes-property.co.uk
Monday to Friday 9:00am to 5:00pm
Saturday 9:00am to 1:00pm
Although these particulars are thought to be materially correct their accuracy cannot be guaranteed and they do not form part of any contract.
Property data and search facilities supplied by www.vebra.com