Email: shenfield@meacockjones.co.uk
106 Hutton Road
Shenfield
Essex
CM15 8NB
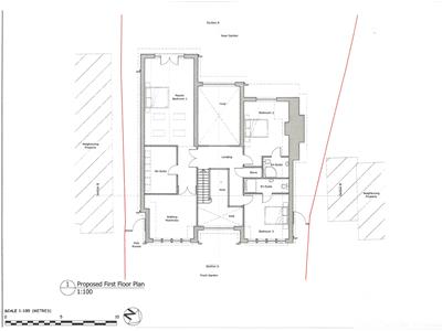
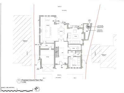
A rare opportunity to acquire a prime cleared building plot on Hutton Mount, positioned at the very heart of this prestigious private residential estate. This exceptional 0.25 acre south west facing plot presents a unique chance to construct a substantial luxury home arranged over three levels. Designed by a local architect, full planning permission has been approved (Ref: 24/00246/FUL) for a beautifully proportioned residence extending to approximately 4,779 sq ft. The approved scheme delivers an elegant and contemporary family home, thoughtfully arranged to maximise light, space and modern living. The design includes an impressive basement level featuring a cinema room, gym and bar, creating outstanding accommodation for both family life and entertaining.
Ideally located just 0.9 miles from Shenfield Broadway, the property benefits from convenient access to the mainline railway station and Crossrail (Elizabeth Line) terminus, offering excellent links into London. A range of highly regarded local schools are within easy reach, including the much sought after St Martin’s School.
Set within one of the area’s most exclusive and most desirable residential locations, this is a truly exceptional opportunity to build a landmark home in Hutton Mount.
For more detail, please contact our sales office.
All CGIs are based on the original bespoke designs for the current owner and are for illustrative purposes only
Although these particulars are thought to be materially correct their accuracy cannot be guaranteed and they do not form part of any contract.
Property data and search facilities supplied by www.vebra.com