52 Church Street
Flint
Flintshire
CH6 5AE
We are delighted to offer a unique opportunity to acquire a former church located in the heart of Flint town centre, offering exciting potential for completion into four self-contained flats. The property has already undergone a first fix, providing a solid foundation for the next phase of development. Ideally positioned within walking distance of a wide range of local amenities, including shops, schools, public transport, and leisure facilities, this property presents a rare investment opportunity in a well-connected and popular location. Offered to the market with no onward chain, this part-converted property is perfect for developers or investors seeking a project with strong potential for return. Key Features: Former church conversion project First fix works already completed Designed for 4 self-contained flats Centrally located in Flint town centre Close to shops, schools, and public transport Offered with no onward chain Excellent development potential Viewing is highly recommended to appreciate the scope of this project.
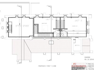
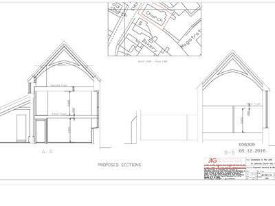
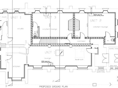
This former church building presents a rare opportunity for residential development with full planning permission granted by Flintshire County Council (Application No. 056309) for conversion into four self-contained flats—comprising one studio flat and three one-bedroom flats. The approved plans include detailed proposed elevations and layout drawings, all of which can be downloaded from the Flintshire Council planning portal.
Although there is no dedicated on-site parking, a nearby council-operated car park offers annual permits for residents, providing a practical parking solution within close proximity.
This project combines modern living with historic character, making it an attractive proposition for developers, investors, or those looking to create unique, design-led homes within a distinctive architectural setting.
Building regulations drawings and structural calculations are available for review. A copy of the fire risk assessment report is also accessible.
All first fix works have been completed, including plumbing and electrical installations. The property is fully connected to mains services, including water, drainage, gas, and electricity.
Viewing via prior appointment through the Agents.
Call to arrange on 01352 762300 or Email your availability, buying position and contact details to : flint@reidandroberts.com
PLEASE NOTE:
The agents can accept no responsibility and appointments are carried out completely at viewers own risk.
Our 'in house' independent financial adviser can offer you a range of Mortgage and Insurance Products and save you the time and inconvenience of trying to get the most competitive deal.
For more information or to book an appointment in the office or in the convenience of your own home, please call 01352 762300.
* Please Be Advised *
YOUR HOME IS AT RISK IF YOU DO NOT KEEP UP REPAYMENTS ON A MORTAGE OR OTHER LOANS SECURED ON IT.
TO MAKE AN OFFER - MAKE AN APPOINTMENT.
If you are interested in purchasing this property, contact this office to make an appointment. The appointment is part of our guarantee to the seller. to insure financial qualification and funding is in place.
Any delay may result in the property being sold to someone else, and survey and legal fees being unnecessarily incurred.
Monday - Friday 9:00am - 5:30pm
Saturday 9:00am - 4:00pm
Winter Closing Hours: 1st November to 1st February:
Mon-Fri 9am - 5pm
Saturday 9am - 4pm
These particulars, whilst believed to be accurate are set out as a general outline only. NO responsibility can be accepted for the accuracy of the description or measurements, these are intended as a guide only.
Any appliances mentioned may not been tested and Reid and Roberts accept no responsibility for their working order and do not constitute any part of an offer or contract. Intending purchasers should not rely on them as statements of representation of fact but must satisfy themselves by inspection or otherwise as to their accuracy.
No person in this firm's employment has the authority to make or give any representation or warranty in respect of the property.
Although these particulars are thought to be materially correct their accuracy cannot be guaranteed and they do not form part of any contract.
Property data and search facilities supplied by www.vebra.com