26 Mill Street
Chesterfield
Derbyshire
S43 4JN
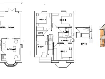
Pinewood Property Estates are pleased to offer this exceptional building plot with planning potential for two detached dwellings, situated within the highly desirable area of Calow. This rare development opportunity allows for the construction of two luxury detached homes in a unique and prestigious setting, positioned between the Old Rectory and Calow Church. The plot enjoys a high degree of privacy, being well screened by mature trees, and benefits from a largely level, cleared site, making it ideally suited for development. The site has outline planning for two detached dwellings and all documents can be found via the NEDC Planning portal using the planning number 23/00664/OL.
Although these particulars are thought to be materially correct their accuracy cannot be guaranteed and they do not form part of any contract.
Property data and search facilities supplied by www.vebra.com