82 Blackdyke Road
Kingstown Industrial Estate
Carlisle
Cumbria
CA3 0PJ
Vicinity Homes are delighted to offer to the market this stunning, three bedroom semi detached house situated within the sought after village location of Houghton. The property is close to a range of local amenities, regular bus route, popular Primary School and has excellent access into Carlisle and onto the M6 & the Western City Bypass. The immaculately presented accommodation briefly comprises of an entrance hallway, modern utility room, cloakroom/WC, lounge, modern dining kitchen and a conservatory. To the first floor there are three bedrooms and a modern four piece bathroom. The property also benefits from double glazing, central heating, on site parking, store with electric garage door, garden to front & a rear garden with views over the field behind. Viewing is absolutely essential to fully appreciate the accommodation on offer. An ideal purchase for a family!
From Carlisle head North along Brampton Road and turn left where signposted for Houghton. Follow the road into the village. Passing the School, take the second right onto Jackson Road. The property is situated on the left hand side.
Approached by a door to front, incorporating laminate floor, radiator and stairs to the first floor.
3.042m x 1.967m (9'11" x 6'5")Incorporating a range of modern fitted wall and base units with complementary work surface over, plumbing for a washing machine and space for a tumble dryer. Double glazed window to rear, door to rear, tiled floor, built in storage cupboard and inset ceiling lights.
1.887m x 0.792m (6'2" x 2'7")Incorporating a wash hand basin set to vanity unit, WC, double glazed obscured window to rear, heated towel rail, tiled floor and extractor fan.
3.944m x 3.520m (12'11" x 11'6")Incorporating a double glazed window front and a radiator.
5.605m x 3.421m (18'4" x 11'2")Incorporating a range modern fitted wall and base units with complementary work surface over, breakfast bar, integrated oven and integrated hob. Integrated fridge, integrated freezer, integrated dishwasher and 1.5 sink unit with mixer tap. Double glazed window to side, double glazed window to rear, two radiators, tiled floor and under stairs storage cupboard.
3.550m x 2.624m (11'7" x 8'7")Incorporating a door to side and a radiator.
Incorporating a double glazed window to side and loft access with pull down ladder.
4.035m x 3.281m (13'2" x 10'9")A double bedroom incorporating a double glazed window to front, radiator and fitted wardrobe/storage.
3.399m x 3.283m (11'1" x 10'9")A double bedroom incorporating a double glazed window to rear and a radiator.
2.795m x 2.226m (9'2" x 7'3")Incorporating a double glazed window to front, radiator and fitted wardrobe/storage.
2.340m x 2.188m (7'8" x 7'2")Incorporating a modern four piece suite comprising of a bath with mixer tap, shower cubicle with waterfall shower & attachment, wash hand basin set to vanity unit and WC. Double glazed obscured window to rear, heated towel rail, tiling to all walls, panelled ceiling, laminate floor, extractor fan and inset ceiling lights.
The property is approached by shillied on site parking and a lawn area with flower & shrub beds. There is also a store with an electric door. To the rear of the property there is a good sized garden with patio seating areas, raised flower & shrub beds, barked play area, outside tap, outside power point and gated access to the front.
2.781m x 1.544m (9'1" x 5'0")Incorporating an electric door, power and lighting.
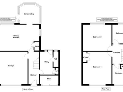
Please note, the floor plan is not to scale and should be used for illustrative purposes only.
https://find-energy-certificate.service.gov.uk/energy-certificate/9536-3629-6500-0039-8276
The property is Freehold.
The property is in Council Tax Band C.
Strictly through arranged appointments by Vicinity Homes. To arrange a viewing, please contact: T: 01228 599011 or E: sales@vicinityhomes.co.uk.
We routinely refer potential purchasers to Mortgage Advisers - Fisher Financial Associates. It is your decision whether you choose to deal with Fisher Financial Associates. In making that decision, you should know that we will receive commission from the company worth approximately £50 depending on any business written.
Referral Fees - Vicinity Homes work with preferred conveyancers for a house sale or purchase. You are under no obligation to use their services. Should you choose to use them, Vicinity Homes Estate Agents will receive a referral fee of between £120.00 to £150.00 on completion of a sale or purchase.
These particulars, whilst believed to be accurate, are set out for guidance only and do not constitute any part of an offer or contract - intending purchasers should not rely on them as statements or representations of fact, but must satisfy themselves by inspection or otherwise as to their accuracy. All electrical appliances mentioned in these details have not been tested and therefore cannot be guaranteed to be in working order.
To register your buying information and receive updates on all our available properties, please contact Vicinity Homes on 01228 599011 or via email to sales@vicinityhomes.co.uk.
We would be pleased to provide you with a free, no obligation valuation for your home. Please contact Vicinity Homes on 01228 599011 or via email to sales@vicinityhomes.co.uk to arrange an appointment.
Although these particulars are thought to be materially correct their accuracy cannot be guaranteed and they do not form part of any contract.
Property data and search facilities supplied by www.vebra.com