82 Blackdyke Road
Kingstown Industrial Estate
Carlisle
Cumbria
CA3 0PJ
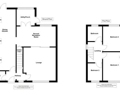
Vicinity Homes are delighted to offer to the market this extended, three bedroom semi detached house situated within the popular village of Thursby. The village boasts a popular Primary School and has excellent access onto the A595 & the Western City Bypass providing transport links to the M6. The accommodation briefly comprises of an entrance hallway, cloakroom/WC, lounge with multi fuel stove, play room, utility/porch and a dining kitchen with french doors. To the first floor there are three bedrooms and a bathroom. The property also benefits from double glazing, central heating, on site parking and gardens to front & rear. Viewing is highly recommend to appreciate the size of the accommodation on offer. An ideal purchase for a first time buyer or a family.
Proceed West along the A595 from Carlisle. Continue straight ahead at the round about. Turn left into Thursby and left again onto Stonehouse Park. Turn left and follow the road. The property is situated on the right hand side and can be identified by our "For Sale" sign.
Approached by a door to front, incorporating a double glazed window to front, radiator, coving to the ceiling and stairs to the first floor.
1.591m x 1.347m (5'2" x 4'5")Incorporating a pedestal wash hand basin, WC, double glazed window to side, inset ceiling lights and coving to the ceiling.
4.156m x 3.551m (13'7" x 11'7")Incorporating a double glazed window to front, radiator and a feature fireplace with a multi fuel stove.
5.083m x 2.750m (16'8" x 9'0")Incorporating a double glazed window to rear, radiator and under stairs storage cupboard.
2.422m x 2.259m (7'11" x 7'4")Incorporating plumbing for a washing machine, double glazed window to rear and door to side.
8.027m x 2.715m (26'4" x 8'10")Incorporating a range of fitted wall and base units with complementary work surface over, oven point and cooker hood over. Tiled splash areas, 1.5 sink unit with mixer tap, plumbing for a dishwasher, double glazed french doors to rear, three double glazed skylights to side, radiator and space for a fridge/freezer.
Incorporating a double glazed window to side and loft access.
3.707m x 3.107m max (12'1" x 10'2" max)A double bedroom incorporating a double glazed window to front, radiator and built in storage cupboard.
3.098m x 3.321m (10'1" x 10'10")A double bedroom incorporating a double glazed window to rear and a radiator.
2.035m x 1.895m (6'8" x 6'2")Incorporating a double glazed window to front and a radiator.
1.898m x 1.679m (6'2" x 5'6")Incorporating a three piece comprising of a bath with shower over, wash hand basin set to vanity unit and WC. Double glazed obscured window to rear and tiled splash areas.
The property is approached by block paved on site parking and lawn area. To the rear of the property there is an enclosed garden with lawn area, patio seating area and access to the front.
Please note, the floor plan is not to scale and should be used for illustrative purposes only.
https://find-energy-certificate.service.gov.uk/energy-certificate/2110-7727-5170-0004-4125
The property is in Council Tax Band C.
The property is Freehold.
Strictly through arranged appointments by Vicinity Homes. To arrange a viewing, please contact: T: 01228 599011 or E: sales@vicinityhomes.co.uk.
We routinely refer potential purchasers to Mortgage Advisers - Fisher Financial Associates. It is your decision whether you choose to deal with Fisher Financial Associates. In making that decision, you should know that we will receive commission from the company worth approximately £50 depending on any business written.
Referral Fees - Vicinity Homes work with preferred conveyancers for a house sale or purchase. You are under no obligation to use their services. Should you choose to use them, Vicinity Homes Estate Agents will receive a referral fee of between £120.00 to £150.00 on completion of a sale or purchase.
These particulars, whilst believed to be accurate, are set out for guidance only and do not constitute any part of an offer or contract - intending purchasers should not rely on them as statements or representations of fact, but must satisfy themselves by inspection or otherwise as to their accuracy. All electrical appliances mentioned in these details have not been tested and therefore cannot be guaranteed to be in working order.
To register your buying information and receive updates on all our available properties, please contact Vicinity Homes on 01228 599011 or via email to sales@vicinityhomes.co.uk.
We would be pleased to provide you with a free, no obligation valuation for your home. Please contact Vicinity Homes on 01228 599011 or via email to sales@vicinityhomes.co.uk to arrange an appointment.
Although these particulars are thought to be materially correct their accuracy cannot be guaranteed and they do not form part of any contract.
Property data and search facilities supplied by www.vebra.com