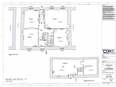
Number 54 is a large office space with three large offices, W.C. and small kitchen area.
A door leads into the entrance vestibule where a further door leads into the hallway.
A door leads into the largest room which offers windows to the front and rear.
Second room with two windows to the front.
Room three with window to the rear.
Small kitchen area with sink and base unit.
W.C. fitted with a wash hand basin, W.C. and opaque window to the rear.
A staircase leads to two basement storage rooms and offers power and light.
Planning permission has currently been applied for change of use to a three bedroomed ground floor flat, full details can be obtained via Fife Council website Planning Reference 25/03348/FULL
EPC Raiting C
5.011 x 3.791 (16'5" x 12'5" )
3.839 x 4.430 (12'7" x 14'6" )
5.3825 x 4.613 (17'7" x 15'1" )
3.599 x 4.429 (11'9" x 14'6" )
2.229 x 2.063 (7'3" x 6'9" )
1.604 x 1.073 (5'3" x 3'6" )
7.686 x 4.458 (25'2" x 14'7" )
3.548 x 3.937 (11'7" x 12'10" )
Although these particulars are thought to be materially correct their accuracy cannot be guaranteed and they do not form part of any contract.
Property data and search facilities supplied by www.vebra.com